![]() |
![]() |
![]() |
![]() |
|
Main Library Expansion Project - Design Process Phase 2 - DAC Meeting No. 4
(Click thumbnails below to enlarge image.)
|
|
![]() |
![]() |
![]() |
![]() |
![]() |
![]() |
![]() |
![]() |
![]() |
||
![]() |
![]() |
![]() |
![]() |
![]() |
![]() |
![]() |
![]() |
![]() |
||
![]() |
![]() |
![]() |
![]() |
![]() |
![]() |
![]() |
![]() |
|||
![]() |
||||||||||

| Phase 2 -
DAC Meeting - January 14, 2004, 6:00 PM Sakey Lecture Hall, Cambridge Public Library, Main Branch, 449 Broadway |
UPCOMING MEETINGS : |
|
|
||
| MCNCDC Meeting
- September 15, 2003 Macht Auditorium, Cambridge Hospital |
|
|
|
||
| Phase 2 -
DAC Meeting No. 5 - September 10, 2003 Media Cafeteria, Cambridge Rindge & Latin School |
|
|
| |
||
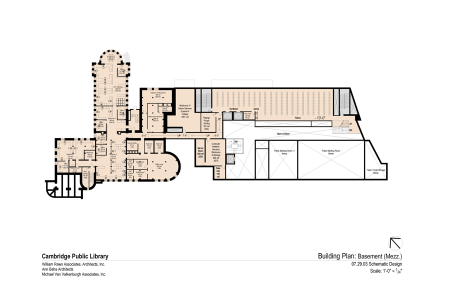
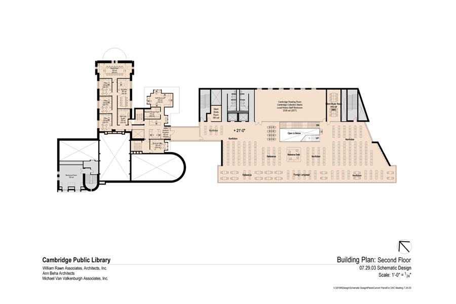
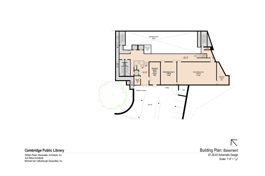
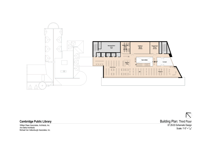
| Phase 2 -
DAC Meeting No. 4 - July 29, 2003 Morse School, 40 Granite Street |
||
|
||
| Phase 2 -
DAC Meeting No. 3 - June 10, 2003 Tobin School, 197 Vassal Lane |
||
| |
||
Phase
2 - DAC Meeting No. 2 - May 22, 2003 |
||
| |
||
Phase
2 - DAC Meeting No. 1 - April 30, 2003 |
||

| MCNCDC Meeting - January 6, 2003 Cambridge Citywide Senior Center, 806 Massachusetts Avenue
|
|
CRLS School Committee Meeting - December 20, 2002
|
|
| MCNCDC
Meeting - December 2, 2002
|
|
| Phase
1 - DAC Meeting No. 6 - November 20, 2002
|
|
| Phase
1 - DAC Meeting No. 5 - October 22, 2002 Meeting No. 5 - Images of Additional Conceptual Design Options |
|
| Public
Information Meeting - October 16, 2002
|
|
Phase
1 - DAC Meeting No. 4 - September 19, 2002 - Public Comment Meeting
(Continuation of Meeting
No. 3)
|
|
| Phase
1 - DAC Meeting No. 3 - September 12, 2002
|
|
| Phase
1 - DAC Meeting No. 2 - July 23, 2002 Cambridge Public Library, O'Neill Branch, 70 Rindge Avenue
| |
Phase 1 - DAC Meeting No. 1 - June 27, 2002 Sakey Lecture Hall, Cambridge Public Library, Main Branch, 449 Broadway
|