U.S. flag

An official website of the United States government

Official websites use .gov
A .gov website belongs to an official government organization in the United States.

Secure .gov websites use HTTPS
A lock ( ) or https:// means you’ve safely connected to the .gov website. Share sensitive information only on official, secure websites.

Photo of houses along Bigelow Street

Property Database

85-95 Prescott St

Property Information

Property Class >8-UNIT-APT
State Class Code 112
Zoning (Unofficial) C-3
Map/Lot 137-35
Land Area (sq. ft) 18,262

Property Value

Year of Assessment2026
Tax DistrictC7
Residential ExemptionNo
Building Value$10,452,600
Land Value$15,636,100
Assessed Value$26,088,700
Sale Price$500,000
Book/Page903/117
Sale DateApril 20, 1978
Previous Assessed Value$26,710,500

Owner Information

Owner(s)PRESIDENT & FELLOWS OF HARVARD COLLEGE
C/O HARVARD REAL ESTATE INC.
HOLYOKE CENTER - ROOM 1000
1350 MASSACHUSETTS AVE
CAMBRIDGE, MA 02138-3895

Building Information

Commercial Building Number 1, Section 1

Exterior
StyleAPARTMENTS
Occupancy >8-UNIT-APT
Number of Stories5
Exterior Wall Type BRICK
Roof Material TAR-GRAVEL
Wall Height 12
Partititions AVERAGE
Interior
Living Area (sq. ft.)63,470
Number of Units 82
Systems
Heat TypeSTEAM
Heat Fuel Oil
Plumbing AVERAGE
Condition & Grade
Year Built1920
Overall ConditionFair
Overall GradeAverage
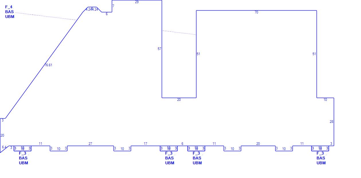
Subareas
Code Description Gross Area Living Area
BAS First Floor 12,718 12,718
F_3 Upper Finish 3 120 360
F_4 Upper Finish 4 Stry 12,598 50,392
UBM Basement 12,718 0
Total: 38,154 63,470
Extra Features / Outbuildings
DescriptionELEV-PSNGR
Number of Units2.00
Unit TypeU
DescriptionCELL TOWER
Number of Units
Unit TypeU

Photos

(Click on a photo to view it at full size)

Sketches

(Click on a sketch to view it at full size)

Related Information

This page contains much of the information used by the City of Cambridge to assess properties. The purpose of this information is to be used only for ad valorem taxation purposes and any other use is therefore not valid.

Page was last modified on 3/8/2021 6:22 PM
Contact Us

How can we help?

Please provide as much detail below as possible so City staff can respond to your inquiry:

As a governmental entity, the Massachusetts Public Records Law applies to records made or received by the City. Any information received through use of this site is subject to the same provisions as information provided on paper.

Read our complete privacy statement


Service Requests

Enter a service request via SeeClickFix for things like missed trash pickups, potholes, etc.