U.S. flag

An official website of the United States government

Official websites use .gov
A .gov website belongs to an official government organization in the United States.

Secure .gov websites use HTTPS
A lock ( ) or https:// means you’ve safely connected to the .gov website. Share sensitive information only on official, secure websites.

Photo of houses along Bigelow Street

Property Database

157 Third St

Property Information

Property Class MULTIUSE-COM
State Class Code 31
Zoning (Unofficial) C-1
Map/Lot 24-22
Land Area (sq. ft) 3,000

Property Value

Year of Assessment2026
Tax DistrictC1
Residential ExemptionYes
Building Value$365,300
Land Value$520,400
Assessed Value$885,700
Sale Price$1
Book/Page64346/73
Sale DateOctober 9, 2014
Previous Assessed Value$1,020,100

Owner Information

Owner(s)WOODS, DANIEL F. & JOANNE M. WOODS
TRS, THE AUGUST-WOODS NOM TRUST
193 HURLEY ST
CAMBRIDGE, MA 02141

Building Information

Commercial Building Number 1, Section 1

Exterior
StyleMIX NBHD CTR W/RES
Occupancy MULTIUSE-COM
Number of Stories2
Exterior Wall Type BRICK
Roof Material ASPHALT-SHNG
Wall Height 10
Partititions FAIR
Interior
Living Area (sq. ft.)3,669
Number of Units 2
Systems
Heat TypeFORCED-AIR
Heat Fuel Gas
Plumbing AVERAGE
Condition & Grade
Year Built1880
Overall ConditionFair
Overall GradeFair
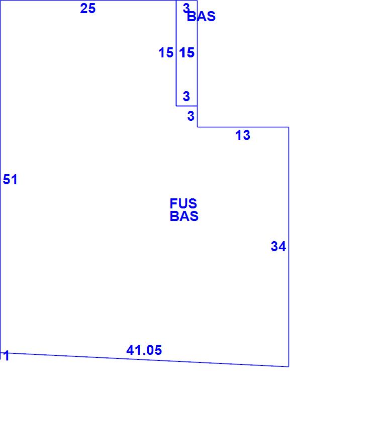
Subareas
Code Description Gross Area Living Area
BAS First Floor 1,857 1,857
FUS Upper Story, Finished 1,812 1,812
Total: 3,669 3,669

Photos

(Click on a photo to view it at full size)

Sketches

(Click on a sketch to view it at full size)

Related Information

This page contains much of the information used by the City of Cambridge to assess properties. The purpose of this information is to be used only for ad valorem taxation purposes and any other use is therefore not valid.

Page was last modified on 3/8/2021 6:22 PM
Contact Us

How can we help?

Please provide as much detail below as possible so City staff can respond to your inquiry:

As a governmental entity, the Massachusetts Public Records Law applies to records made or received by the City. Any information received through use of this site is subject to the same provisions as information provided on paper.

Read our complete privacy statement


Service Requests

Enter a service request via SeeClickFix for things like missed trash pickups, potholes, etc.