U.S. flag

An official website of the United States government

Official websites use .gov
A .gov website belongs to an official government organization in the United States.

Secure .gov websites use HTTPS
A lock ( ) or https:// means you’ve safely connected to the .gov website. Share sensitive information only on official, secure websites.

Photo of houses along Bigelow Street

Property Database

111-9 Trowbridge St

Property Information

Property Class SNGL-FAM-RES
State Class Code 101
Zoning (Unofficial) C-1
Map/Lot 142-164
Land Area (sq. ft) 1,211

Property Value

Year of Assessment2026
Tax DistrictR4
Residential ExemptionNo
Building Value$553,400
Land Value$802,100
Assessed Value$1,355,500
Sale Price$559,000
Book/Page33620/179
Sale DateSeptember 12, 2001
Previous Assessed Value$1,309,800

Owner Information

Owner(s)GANG TIAN & YUANHUI HU
85 WORTH MILL LANE
PRINCETON, NJ 08540

Building Information

Residential Building Number 1, Section 1

Exterior
StyleTOWNHOUSE
Occupancy SNGL-FAM-RES
Number of Stories2.5
Exterior Wall Type Frame-Clapbrd
Roof Type Gable
Roof Material Aspahlt Shingl
Interior
Living Area (sq. ft.)1,476
Number of Units 0
Total Rooms 6
Bedrooms 3
Kitchens 2
Full Baths 2
Half Baths 1
Fireplaces 0
Systems
Heat TypeHot Water
Heat Fuel Gas
Central A/C No
Condition & Grade
Year Built1979
Interior Condition Good
Overall ConditionGood
Overall GradeAverage
Parking
Open Parking0
Covered Parking1
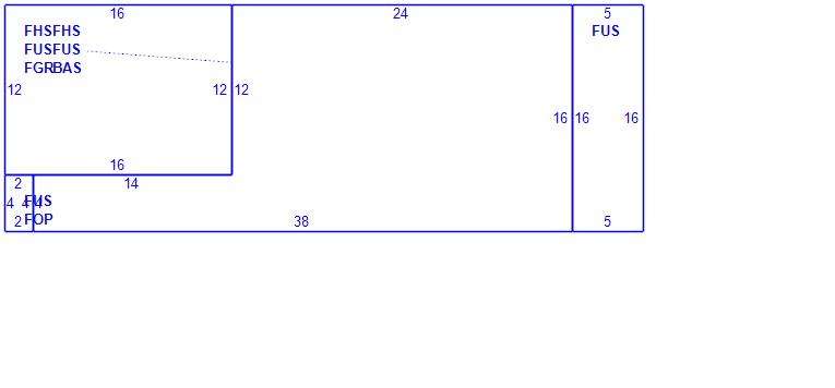
Subareas
Code Description Gross Area Living Area
BAS First Floor 440 440
FGR Garage 192 0
FHS Half Story, Finished 632 316
FOP Porch, Open 8 0
FUS Upper Story, Finished 720 720
Total: 1,992 1,476

Photos

(Click on a photo to view it at full size)

Sketches

(Click on a sketch to view it at full size)

Related Information

This page contains much of the information used by the City of Cambridge to assess properties. The purpose of this information is to be used only for ad valorem taxation purposes and any other use is therefore not valid.

Page was last modified on 3/8/2021 6:22 PM
Contact Us

How can we help?

Please provide as much detail below as possible so City staff can respond to your inquiry:

As a governmental entity, the Massachusetts Public Records Law applies to records made or received by the City. Any information received through use of this site is subject to the same provisions as information provided on paper.

Read our complete privacy statement


Service Requests

Enter a service request via SeeClickFix for things like missed trash pickups, potholes, etc.