U.S. flag

An official website of the United States government

Official websites use .gov
A .gov website belongs to an official government organization in the United States.

Secure .gov websites use HTTPS
A lock ( ) or https:// means you’ve safely connected to the .gov website. Share sensitive information only on official, secure websites.

Photo of houses along Bigelow Street

Property Database

20 Bryant St

Property Information

Property Class SINGLE FAM W/AUXILIARY APT
State Class Code 1014
Zoning (Unofficial) A-2
Map/Lot 146-82
Land Area (sq. ft) 16,994

Property Value

Year of Assessment2026
Tax DistrictR5
Residential ExemptionYes
Building Value$4,023,900
Land Value$2,821,900
Assessed Value$6,845,800
Sale Price$2,200,000
Book/Page46687/26
Sale DateDecember 19, 2005
Previous Assessed Value$6,712,000

Owner Information

Owner(s)POGORZELSKI, MILICA G. &
DONALD POGORZELSKI, TRUSTEE
20 BRYANT STREET
CAMBRIDGE, MA 02138

Building Information

Residential Building Number 1, Section 1

Exterior
StyleCOLONIAL
Occupancy SINGLE FAM W/AUXILIARY APT
Number of Stories2.5
Exterior Wall Type Stucco
Roof Type Gable
Roof Material Slate Clay
Interior
Living Area (sq. ft.)5,069
Number of Units 2
Total Rooms 14
Bedrooms 5
Kitchens 2
Full Baths 5
Half Baths 2
Fireplaces 4
Systems
Heat TypeOther
Heat Fuel Combination
Central A/C Yes
Condition & Grade
Year Built1916
Interior Condition Excellent
Overall ConditionExcellent
Overall GradeGood Very Good
Parking
Open Parking2
Covered Parking4
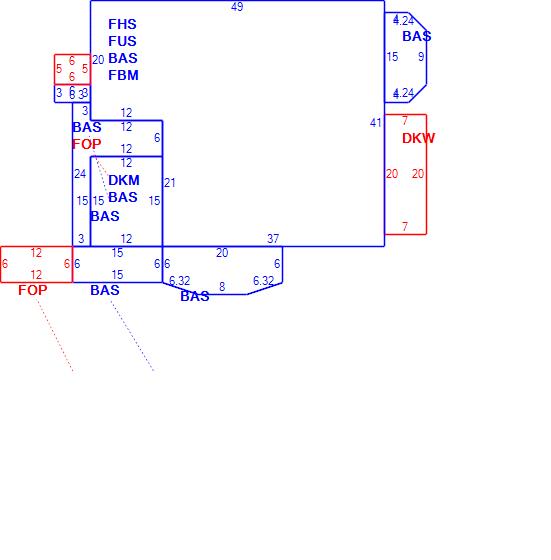
Subareas
Code Description Gross Area Living Area
BAS First Floor 2,433 2,433
DKM Deck Masonry 180 0
DKW Deck Wood 140 0
FBM Basement, Finished 1,757 0
FHS Half Story, Finished 1,757 879
FOP Porch, Open 102 0
FUS Upper Story, Finished 1,757 1,757
Total: 8,126 5,069
Extra Features / Outbuildings
DescriptionFENCE-WOOD-3
Number of Units337.00
Unit Type
DescriptionGAR-1.0S
Number of Units410.00
Unit TypeSF
DescriptionGAR-1.0S
Number of Units600.00
Unit TypeSF

Photos

(Click on a photo to view it at full size)

Sketches

(Click on a sketch to view it at full size)

Related Information

This page contains much of the information used by the City of Cambridge to assess properties. The purpose of this information is to be used only for ad valorem taxation purposes and any other use is therefore not valid.

Page was last modified on 3/8/2021 6:22 PM
Contact Us

How can we help?

Please provide as much detail below as possible so City staff can respond to your inquiry:

As a governmental entity, the Massachusetts Public Records Law applies to records made or received by the City. Any information received through use of this site is subject to the same provisions as information provided on paper.

Read our complete privacy statement


Service Requests

Enter a service request via SeeClickFix for things like missed trash pickups, potholes, etc.