U.S. flag

An official website of the United States government

Official websites use .gov
A .gov website belongs to an official government organization in the United States.

Secure .gov websites use HTTPS
A lock ( ) or https:// means you’ve safely connected to the .gov website. Share sensitive information only on official, secure websites.

Photo of houses along Bigelow Street

Property Database

1725 Massachusetts Ave

Property Information

Property Class GAS-STATION
State Class Code 334
Zoning (Unofficial) BA-2
Map/Lot 154-101
Land Area (sq. ft) 12,088

Property Value

Year of Assessment2026
Tax DistrictC8
Residential ExemptionNo
Building Value$352,300
Land Value$1,929,200
Assessed Value$2,281,500
Sale Price$3,750,000
Book/Page61557/112
Sale DateApril 8, 2013
Previous Assessed Value$2,699,500

Owner Information

Owner(s)ELIE ON MASS. AVE., LLC
1725 MASSACHUSETTS AVE
CAMBRIDGE, MA 02138

Building Information

Commercial Building Number 1, Section 1

Exterior
StyleCOM-GRGE-SVC
Occupancy GAS-STATION
Number of Stories1
Exterior Wall Type BRICK
Roof Material TAR-GRAVEL
Wall Height 12
Partititions AVERAGE
Interior
Living Area (sq. ft.)2,019
Number of Units 1
Systems
Heat TypeFORCED-AIR
Heat Fuel Oil
Plumbing AVERAGE
Condition & Grade
Year Built1968
Overall ConditionAverage
Overall GradeAverage
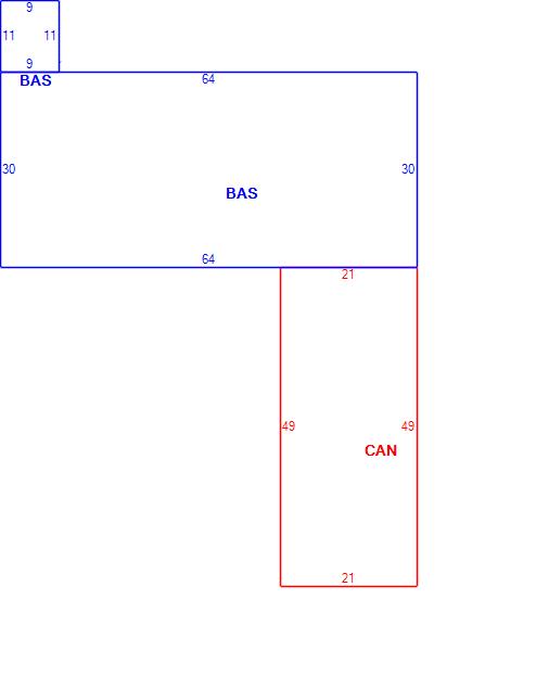
Subareas
Code Description Gross Area Living Area
BAS First Floor 2,019 2,019
CAN Canopy 1,029 0
Total: 3,048 2,019
Extra Features / Outbuildings
DescriptionSINGLE P LIFT
Number of Units3.00
Unit TypeU
DescriptionPAVING-ASPHT
Number of Units5000.00
Unit TypeSF
DescriptionTWO-HOSE-PUMP
Number of Units3.00
Unit TypeU
Description8000 G TANK
Number of Units3.00
Unit TypeU
DescriptionSIGN QUAL TWO
Number of Units1.00
Unit TypeU
DescriptionDBL CONC APRON
Number of Units2.00
Unit TypeU

Photos

(Click on a photo to view it at full size)

Sketches

(Click on a sketch to view it at full size)

Related Information

This page contains much of the information used by the City of Cambridge to assess properties. The purpose of this information is to be used only for ad valorem taxation purposes and any other use is therefore not valid.

Page was last modified on 3/8/2021 6:22 PM
Contact Us

How can we help?

Please provide as much detail below as possible so City staff can respond to your inquiry:

As a governmental entity, the Massachusetts Public Records Law applies to records made or received by the City. Any information received through use of this site is subject to the same provisions as information provided on paper.

Read our complete privacy statement


Service Requests

Enter a service request via SeeClickFix for things like missed trash pickups, potholes, etc.