U.S. flag

An official website of the United States government

Official websites use .gov
A .gov website belongs to an official government organization in the United States.

Secure .gov websites use HTTPS
A lock ( ) or https:// means you’ve safely connected to the .gov website. Share sensitive information only on official, secure websites.

Photo of houses along Bigelow Street

Property Database

109 Third St

Property Information

Property Class Imprvd County Admin
State Class Code 992
Zoning (Unofficial) C-1
Map/Lot 24-123
Land Area (sq. ft) 32,133

Property Value

Year of Assessment2026
Tax DistrictC1
Residential ExemptionNo
Building Value$10,614,600
Land Value$5,763,400
Assessed Value$16,378,000
Sale Price$7,750
Book/Page/
Sale DateSeptember 4, 1931
Previous Assessed Value$17,629,200

Owner Information

Owner(s)MIDDLESEX COUNTY OF
200 CAMBRIDGE
CAMBRIDGE, MA 02141

Building Information

Commercial Building Number 1, Section 1

Exterior
StyleMUN. GOVT BLDG
Occupancy Imprvd County Admin
Number of Stories3
Exterior Wall Type BRICK
Roof Material TAR-GRAVEL
Wall Height 12
Partititions AVERAGE
Interior
Living Area (sq. ft.)40,648
Number of Units 0
Systems
Heat TypeHOT-WATER
Heat Fuel Gas
Plumbing AVERAGE
Condition & Grade
Year Built1910
Overall ConditionGood
Overall GradeGood
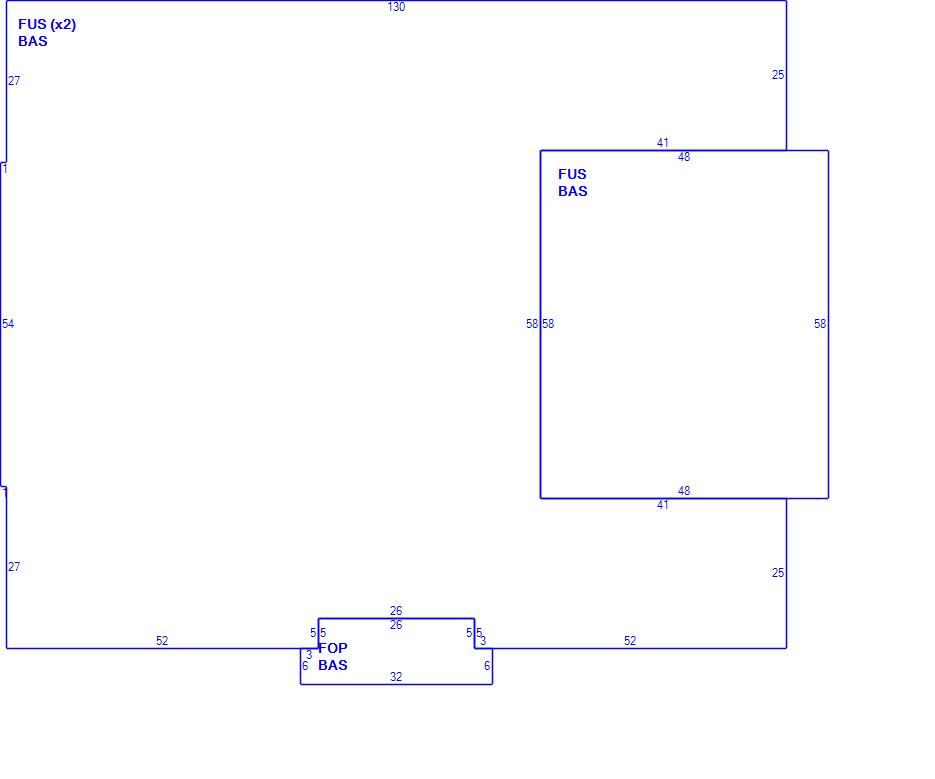
Subareas
Code Description Gross Area Living Area
BAS First Floor 14,692 14,692
FOP Porch, Open 322 0
FUS Upper Story, Finished 25,956 25,956
Total: 40,970 40,648
Extra Features / Outbuildings
DescriptionFENCE-WOOD-3
Number of Units400.00
Unit Type
DescriptionELEV-PSNGR
Number of Units3.00
Unit TypeU

Photos

(Click on a photo to view it at full size)

Sketches

(Click on a sketch to view it at full size)

Related Information

This page contains much of the information used by the City of Cambridge to assess properties. The purpose of this information is to be used only for ad valorem taxation purposes and any other use is therefore not valid.

Page was last modified on 3/8/2021 6:22 PM
Contact Us

How can we help?

Please provide as much detail below as possible so City staff can respond to your inquiry:

As a governmental entity, the Massachusetts Public Records Law applies to records made or received by the City. Any information received through use of this site is subject to the same provisions as information provided on paper.

Read our complete privacy statement


Service Requests

Enter a service request via SeeClickFix for things like missed trash pickups, potholes, etc.