U.S. flag

An official website of the United States government

Official websites use .gov
A .gov website belongs to an official government organization in the United States.

Secure .gov websites use HTTPS
A lock ( ) or https:// means you’ve safely connected to the .gov website. Share sensitive information only on official, secure websites.

Photo of houses along Bigelow Street

Property Database

292 Cambridge St

Property Information

Property Class BANK
State Class Code 341
Zoning (Unofficial) BA
Map/Lot 24-133
Land Area (sq. ft) 10,000

Property Value

Year of Assessment2026
Tax DistrictC1
Residential ExemptionNo
Building Value$5,463,100
Land Value$1,722,800
Assessed Value$7,185,900
Sale Price$0
Book/Page/
Sale DateJanuary 1, 1900
Previous Assessed Value$7,937,100

Owner Information

Owner(s)EAST CAMBRIDGE SAVINGS BANK
292 CAMBRIDGE ST
CAMBRIDGE, MA 02141-1203

Building Information

Commercial Building Number 1, Section 1

Exterior
StyleBANK
Occupancy BANK
Number of Stories2
Exterior Wall Type BRICK
Roof Material TAR-GRAVEL
Wall Height 14
Partititions AVERAGE
Interior
Living Area (sq. ft.)11,756
Number of Units 1
Systems
Heat TypeHOT-WATER
Heat Fuel Oil
Plumbing AVERAGE
Condition & Grade
Year Built1932
Overall ConditionExcellent
Overall GradeGood-v-good
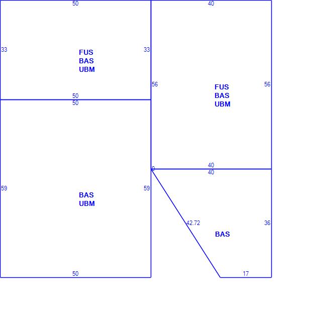
Subareas
Code Description Gross Area Living Area
BAS First Floor 7,866 7,866
FUS Upper Story, Finished 3,890 3,890
UBM Basement 6,840 0
Total: 18,596 11,756

Photos

(Click on a photo to view it at full size)

Sketches

(Click on a sketch to view it at full size)

Related Information

This page contains much of the information used by the City of Cambridge to assess properties. The purpose of this information is to be used only for ad valorem taxation purposes and any other use is therefore not valid.

Page was last modified on 3/8/2021 6:22 PM
Contact Us

How can we help?

Please provide as much detail below as possible so City staff can respond to your inquiry:

As a governmental entity, the Massachusetts Public Records Law applies to records made or received by the City. Any information received through use of this site is subject to the same provisions as information provided on paper.

Read our complete privacy statement


Service Requests

Enter a service request via SeeClickFix for things like missed trash pickups, potholes, etc.