U.S. flag

An official website of the United States government

Official websites use .gov
A .gov website belongs to an official government organization in the United States.

Secure .gov websites use HTTPS
A lock ( ) or https:// means you’ve safely connected to the .gov website. Share sensitive information only on official, secure websites.

Photo of houses along Bigelow Street

Property Database

138 Otis St

Property Information

Property Class SNGL-FAM-RES
State Class Code 101
Zoning (Unofficial) C-1
Map/Lot 25-2
Land Area (sq. ft) 2,000

Property Value

Year of Assessment2026
Tax DistrictR1
Residential ExemptionYes
Building Value$422,100
Land Value$513,400
Assessed Value$935,500
Sale Price$1
Book/Page74961/547
Sale DateJune 25, 2020
Previous Assessed Value$903,500

Owner Information

Owner(s)FENNELL DANIEL J TR
ANNA M. FENNELL
138 OTIS ST
CAMBRIDGE, MA 02141

Building Information

Residential Building Number 1, Section 1

Exterior
StyleCONVENTIONAL
Occupancy SNGL-FAM-RES
Number of Stories2.5
Exterior Wall Type Asbstos Shingl
Roof Type Gable
Roof Material Aspahlt Shingl
Interior
Living Area (sq. ft.)1,670
Number of Units 1
Total Rooms 9
Bedrooms 6
Kitchens 1
Full Baths 2
Half Baths 1
Fireplaces 0
Systems
Heat TypeHot Water
Heat Fuel Oil
Central A/C No
Condition & Grade
Year Built1873
Interior Condition Average
Overall ConditionAverage
Overall GradeFair
Parking
Open Parking0
Covered Parking0
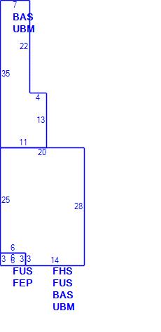
Subareas
Code Description Gross Area Living Area
BAS First Floor 839 839
FEP Porch, Enclosed 18 0
FHS Half Story, Finished 542 271
FUS Upper Story, Finished 560 560
UBM Basement 839 0
Total: 2,798 1,670

Photos

(Click on a photo to view it at full size)

Sketches

(Click on a sketch to view it at full size)

Related Information

This page contains much of the information used by the City of Cambridge to assess properties. The purpose of this information is to be used only for ad valorem taxation purposes and any other use is therefore not valid.

Page was last modified on 3/8/2021 6:22 PM
Contact Us

How can we help?

Please provide as much detail below as possible so City staff can respond to your inquiry:

As a governmental entity, the Massachusetts Public Records Law applies to records made or received by the City. Any information received through use of this site is subject to the same provisions as information provided on paper.

Read our complete privacy statement


Service Requests

Enter a service request via SeeClickFix for things like missed trash pickups, potholes, etc.