U.S. flag

An official website of the United States government

Official websites use .gov
A .gov website belongs to an official government organization in the United States.

Secure .gov websites use HTTPS
A lock ( ) or https:// means you’ve safely connected to the .gov website. Share sensitive information only on official, secure websites.

Photo of houses along Bigelow Street

Property Database

47 Oxford St

Property Information

Property Class Private College, University
State Class Code 942
Zoning (Unofficial) C-2A
Map/Lot 157-64
Land Area (sq. ft) 33,732

Property Value

Year of Assessment2026
Tax DistrictC8
Residential ExemptionNo
Building Value$33,825,800
Land Value$9,735,400
Assessed Value$43,561,200
Sale Price$0
Book/Page/
Sale DateJanuary 1, 1900
Previous Assessed Value$45,759,500

Owner Information

Owner(s)LESLEY COLLEGE
29 EVERETT STREET
CAMBRIDGE, MA 02138

Building Information

Commercial Building Number 1, Section 1

Exterior
StyleMULTIPURP COLL
Occupancy US Government
Number of Stories5
Exterior Wall Type BRICK
Roof Material ROLL-ROOFING
Wall Height 10
Partititions AVERAGE
Interior
Living Area (sq. ft.)36,023
Number of Units 0
Systems
Heat TypeHOT-WATER
Heat Fuel
Plumbing AVERAGE
Condition & Grade
Year Built1965
Overall ConditionGood
Overall GradeGood
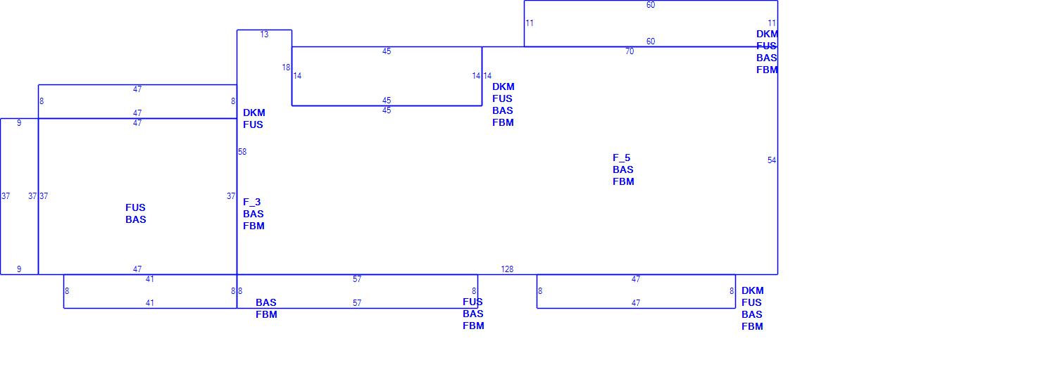
Subareas
Code Description Gross Area Living Area
BAS First Floor 6,851 6,851
DKM Deck Masonry 714 0
F_3 Upper Finish 3 3,171 9,513
F_4 Upper Finish 4 Stry 2,966 11,864
FBM Basement, Finished 6,751 6,751
FOP Porch, Open 210 0
FUS Upper Story, Finished 1,044 1,044
Total: 21,707 36,023

Commercial Building Number 2, Section 1

Exterior
StyleMULTIPURP COLL
Occupancy Private College, University
Number of Stories6
Exterior Wall Type BRICK
Roof Material ROLL-ROOFING
Wall Height 10
Partititions AVERAGE
Interior
Living Area (sq. ft.)61,097
Number of Units 0
Systems
Heat TypeHOT-WATER
Heat Fuel
Plumbing AVERAGE
Condition & Grade
Year Built1965
Overall ConditionGood
Overall GradeGood
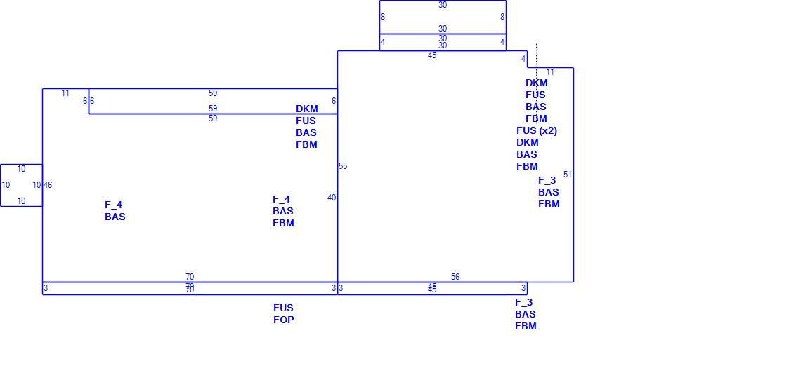
Subareas
Code Description Gross Area Living Area
BAS First Floor 10,856 10,856
DKM Deck Masonry 2,042 0
F_3 Upper Finish 3 1,739 5,217
F_5 Upper Finish 5 Stry 6,334 31,670
FBM Basement, Finished 10,523 10,523
FUS Upper Story, Finished 2,831 2,831
Total: 34,325 61,097

Photos

(Click on a photo to view it at full size)

Sketches

(Click on a sketch to view it at full size)

Related Information

This page contains much of the information used by the City of Cambridge to assess properties. The purpose of this information is to be used only for ad valorem taxation purposes and any other use is therefore not valid.

Page was last modified on 3/8/2021 6:22 PM
Contact Us

How can we help?

Please provide as much detail below as possible so City staff can respond to your inquiry:

As a governmental entity, the Massachusetts Public Records Law applies to records made or received by the City. Any information received through use of this site is subject to the same provisions as information provided on paper.

Read our complete privacy statement


Service Requests

Enter a service request via SeeClickFix for things like missed trash pickups, potholes, etc.