U.S. flag

An official website of the United States government

Official websites use .gov
A .gov website belongs to an official government organization in the United States.

Secure .gov websites use HTTPS
A lock ( ) or https:// means you’ve safely connected to the .gov website. Share sensitive information only on official, secure websites.

Photo of houses along Bigelow Street

Property Database

69 Mt Auburn St

Property Information

Property Class RETAIL-OFFIC
State Class Code 345
Zoning (Unofficial) BB-HSQ
Map/Lot 160-77
Land Area (sq. ft) 4,369

Property Value

Year of Assessment2026
Tax DistrictC7
Residential ExemptionNo
Building Value$4,028,300
Land Value$4,066,700
Assessed Value$8,095,000
Sale Price$1,900,000
Book/Page26441/447
Sale DateJune 27, 1996
Previous Assessed Value$9,370,200

Owner Information

Owner(s)HARVARD STUDENT AGENCIES, INC
67 MT. AUBURN ST
CAMBRIDGE, MA 02138

Building Information

Commercial Building Number 1, Section 1

Exterior
StyleOFFICE
Occupancy GEN-OFFICE
Number of Stories4
Exterior Wall Type BRICK
Roof Material SLATE-CLAY
Wall Height 10
Partititions GOOD
Interior
Living Area (sq. ft.)14,222
Number of Units 4
Systems
Heat TypeFORCED-AIR
Heat Fuel Gas
Plumbing GOOD
Condition & Grade
Year Built1928
Overall ConditionAverage
Overall GradeExcellent
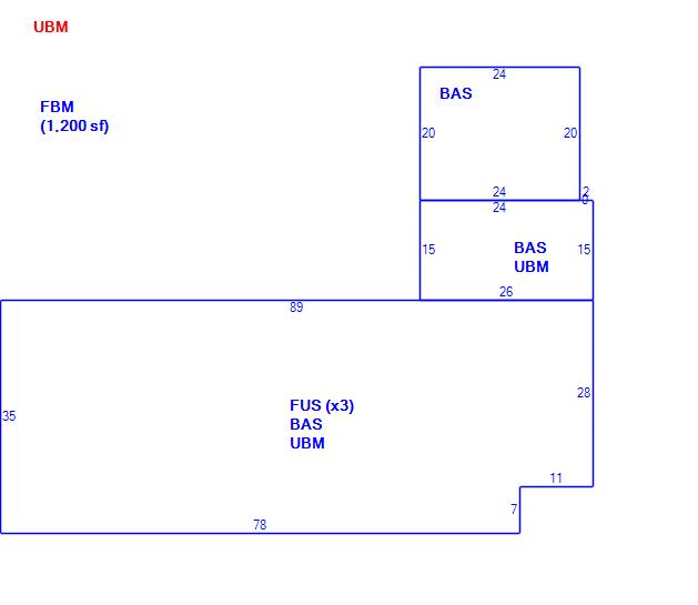
Subareas
Code Description Gross Area Living Area
BAS First Floor 3,908 3,908
FBM Basement, Finished 1,200 1,200
FUS Upper Story, Finished 9,114 9,114
UBM Basement 2,228 0
Total: 16,450 14,222
Extra Features / Outbuildings
DescriptionELEV-PSNGR
Number of Units1.00
Unit TypeU

Photos

(Click on a photo to view it at full size)

Sketches

(Click on a sketch to view it at full size)

Related Information

This page contains much of the information used by the City of Cambridge to assess properties. The purpose of this information is to be used only for ad valorem taxation purposes and any other use is therefore not valid.

Page was last modified on 3/8/2021 6:22 PM
Contact Us

How can we help?

Please provide as much detail below as possible so City staff can respond to your inquiry:

As a governmental entity, the Massachusetts Public Records Law applies to records made or received by the City. Any information received through use of this site is subject to the same provisions as information provided on paper.

Read our complete privacy statement


Service Requests

Enter a service request via SeeClickFix for things like missed trash pickups, potholes, etc.