U.S. flag

An official website of the United States government

Official websites use .gov
A .gov website belongs to an official government organization in the United States.

Secure .gov websites use HTTPS
A lock ( ) or https:// means you’ve safely connected to the .gov website. Share sensitive information only on official, secure websites.

Photo of houses along Bigelow Street

Property Database

76 Mt Auburn St

Property Information

Property Class FRAT-ORGANIZ
State Class Code 353
Zoning (Unofficial) C-1
Map/Lot 162-62
Land Area (sq. ft) 7,622

Property Value

Year of Assessment2026
Tax DistrictC7
Residential ExemptionNo
Building Value$1,506,400
Land Value$1,268,300
Assessed Value$2,774,700
Sale Price$0
Book/Page20549/262
Sale DateMay 18, 1990
Previous Assessed Value$3,239,500

Owner Information

Owner(s)76 MOUNT AUBURN STREET, INC.
C/O NED BANNON
76 MOUNT AUBURN ST
CAMBRIDGE, MA 02138

Building Information

Commercial Building Number 1, Section 1

Exterior
StyleFRATERNITY
Occupancy FRAT-ORGANIZ
Number of Stories2
Exterior Wall Type BRICK
Roof Material TAR-GRAVEL
Wall Height 12
Partititions AVERAGE
Interior
Living Area (sq. ft.)8,112
Number of Units 1
Systems
Heat TypeSTEAM
Heat Fuel Oil
Plumbing AVERAGE
Condition & Grade
Year Built1930
Overall ConditionGood
Overall GradeGood
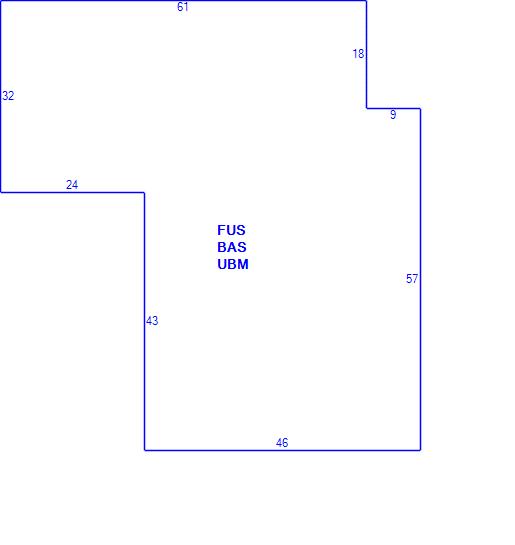
Subareas
Code Description Gross Area Living Area
BAS First Floor 4,056 4,056
FUS Upper Story, Finished 4,056 4,056
UBM Basement 4,056 0
Total: 12,168 8,112

Photos

(Click on a photo to view it at full size)

Sketches

(Click on a sketch to view it at full size)

Related Information

This page contains much of the information used by the City of Cambridge to assess properties. The purpose of this information is to be used only for ad valorem taxation purposes and any other use is therefore not valid.

Page was last modified on 3/8/2021 6:22 PM
Contact Us

How can we help?

Please provide as much detail below as possible so City staff can respond to your inquiry:

As a governmental entity, the Massachusetts Public Records Law applies to records made or received by the City. Any information received through use of this site is subject to the same provisions as information provided on paper.

Read our complete privacy statement


Service Requests

Enter a service request via SeeClickFix for things like missed trash pickups, potholes, etc.