U.S. flag

An official website of the United States government

Official websites use .gov
A .gov website belongs to an official government organization in the United States.

Secure .gov websites use HTTPS
A lock ( ) or https:// means you’ve safely connected to the .gov website. Share sensitive information only on official, secure websites.

Photo of houses along Bigelow Street

Property Database

90-92 Mt Auburn St

Property Information

Property Class RETAIL-STORE
State Class Code 325
Zoning (Unofficial) BB-HSQ
Map/Lot 162-68
Land Area (sq. ft) 5,547

Property Value

Year of Assessment2026
Tax DistrictC7
Residential ExemptionNo
Building Value$284,600
Land Value$899,900
Assessed Value$1,184,500
Sale Price$4,400,000
Book/Page17707/246
Sale DateDecember 24, 1986
Previous Assessed Value$1,336,500

Owner Information

Owner(s)PRESIDENT & FELLOWS OF HARVARD COLLEGE
C/O HARVARD REAL ESTATE, INC.
HOLYOKE CENTER,ROOM 1000
1350 MASSACHUSETTS AVE
CAMBRIDGE, MA 02138-3895

Building Information

Commercial Building Number 1, Section 1

Exterior
StyleMULTIPURP COLL
Occupancy RETAIL-STORE
Number of Stories4
Exterior Wall Type METAL-GLASS
Roof Material RUBBER-MEMBRAN
Wall Height 12
Partititions GOOD
Interior
Living Area (sq. ft.)21,678
Number of Units 1
Systems
Heat TypeHOT/CHLD-WTR
Heat Fuel Gas
Plumbing GOOD
Condition & Grade
Year Built2005
Overall ConditionAverage
Overall GradeGood
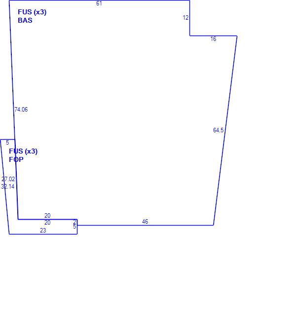
Subareas
Code Description Gross Area Living Area
BAS First Floor 5,247 5,247
FOP Porch, Open 230 0
FUS Upper Story, Finished 16,431 16,431
Total: 21,908 21,678

Photos

(Click on a photo to view it at full size)

Sketches

(Click on a sketch to view it at full size)

Related Information

This page contains much of the information used by the City of Cambridge to assess properties. The purpose of this information is to be used only for ad valorem taxation purposes and any other use is therefore not valid.

Page was last modified on 3/8/2021 6:22 PM
Contact Us

How can we help?

Please provide as much detail below as possible so City staff can respond to your inquiry:

As a governmental entity, the Massachusetts Public Records Law applies to records made or received by the City. Any information received through use of this site is subject to the same provisions as information provided on paper.

Read our complete privacy statement


Service Requests

Enter a service request via SeeClickFix for things like missed trash pickups, potholes, etc.