U.S. flag

An official website of the United States government

Official websites use .gov
A .gov website belongs to an official government organization in the United States.

Secure .gov websites use HTTPS
A lock ( ) or https:// means you’ve safely connected to the .gov website. Share sensitive information only on official, secure websites.

Photo of houses along Bigelow Street

Property Database

16 Garden St

Property Information

Property Class HOTEL
State Class Code 300
Zoning (Unofficial) C-2
Map/Lot 170-39
Land Area (sq. ft) 34,277

Property Value

Year of Assessment2026
Tax DistrictC7
Residential ExemptionNo
Building Value$10,040,700
Land Value$6,113,600
Assessed Value$16,154,300
Sale Price$0
Book/Page13531/251
Sale DateSeptember 1, 1978
Previous Assessed Value$15,683,800

Owner Information

Owner(s)BERGOULIAN, MARY A.,
EDWARD N.& WALTER A. GULESERIAN TRS.
ATTN: TAD W. GULESERIAN
16 GARDEN ST
CAMBRIDGE, MA 02138-3604

Building Information

Commercial Building Number 1, Section 1

Exterior
StyleHOTEL
Occupancy HOTEL
Number of Stories7
Exterior Wall Type BRICK
Roof Material OTHER
Wall Height 10
Partititions AVERAGE
Interior
Living Area (sq. ft.)111,920
Number of Units 175
Systems
Heat TypeHOT-WATR-RAD
Heat Fuel
Plumbing AVERAGE
Condition & Grade
Year Built1926
Overall ConditionFair
Overall GradeAverage
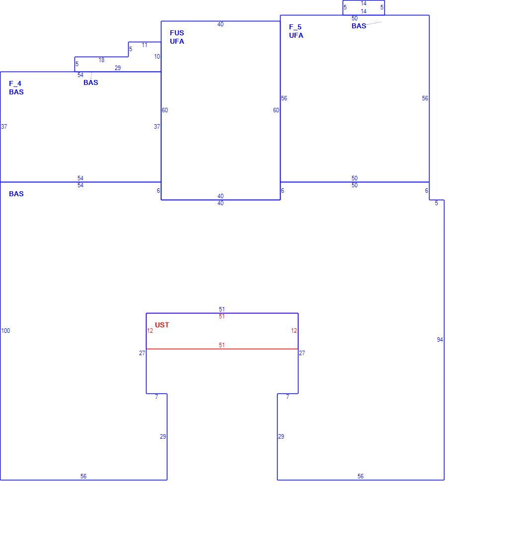
Subareas
Code Description Gross Area Living Area
BAS First Floor 14,448 14,448
F_4 Upper Finish 4 Stry 1,998 7,992
F_5 Upper Finish 5 Stry 2,800 14,000
F_6 Upper Finish 6 Stry 12,180 73,080
FUS Upper Story, Finished 2,400 2,400
UFA Unfinished Area 5,200 0
UST Utility, Storage, Unfinished 612 0
Total: 39,638 111,920
Extra Features / Outbuildings
DescriptionPAVING-ASPHT
Number of Units5000.00
Unit TypeSF
DescriptionELEV-FREIGHT
Number of Units1.00
Unit TypeU
DescriptionELEV-PSNGR
Number of Units2.00
Unit TypeU

Photos

(Click on a photo to view it at full size)

Sketches

(Click on a sketch to view it at full size)

Related Information

This page contains much of the information used by the City of Cambridge to assess properties. The purpose of this information is to be used only for ad valorem taxation purposes and any other use is therefore not valid.

Page was last modified on 3/8/2021 6:22 PM
Contact Us

How can we help?

Please provide as much detail below as possible so City staff can respond to your inquiry:

As a governmental entity, the Massachusetts Public Records Law applies to records made or received by the City. Any information received through use of this site is subject to the same provisions as information provided on paper.

Read our complete privacy statement


Service Requests

Enter a service request via SeeClickFix for things like missed trash pickups, potholes, etc.