U.S. flag

An official website of the United States government

Official websites use .gov
A .gov website belongs to an official government organization in the United States.

Secure .gov websites use HTTPS
A lock ( ) or https:// means you’ve safely connected to the .gov website. Share sensitive information only on official, secure websites.

Photo of houses along Bigelow Street

Property Database

8 Chauncy St

Property Information

Property Class >8-UNIT-APT
State Class Code 112
Zoning (Unofficial) C-2
Map/Lot 172-63
Land Area (sq. ft) 10,828

Property Value

Year of Assessment2026
Tax DistrictC7
Residential ExemptionNo
Building Value$5,797,300
Land Value$4,767,100
Assessed Value$10,564,400
Sale Price$0
Book/Page13301/211
Sale DateOctober 3, 1977
Previous Assessed Value$10,640,500

Owner Information

Owner(s)HARLOW PROPERTIES INC.
P.O. BOX 247
ROCKPORT, MA 01966

Building Information

Commercial Building Number 1, Section 1

Exterior
StyleAPARTMENTS
Occupancy >8-UNIT-APT
Number of Stories4
Exterior Wall Type BRICK
Roof Material RUBBER-MEMBRAN
Wall Height 12
Partititions AVERAGE
Interior
Living Area (sq. ft.)29,290
Number of Units 25
Systems
Heat TypeHOT-WATER
Heat Fuel Oil
Plumbing AVERAGE
Condition & Grade
Year Built1900
Overall ConditionAverage
Overall GradeAverage
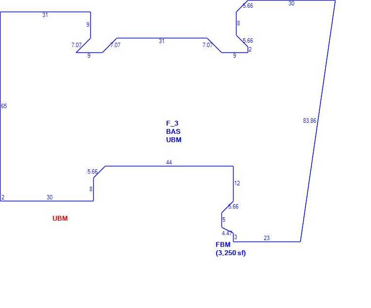
Subareas
Code Description Gross Area Living Area
BAS First Floor 6,510 6,510
F_3 Upper Finish 3 6,510 19,530
FBM Basement, Finished 3,250 3,250
UBM Basement 3,260 0
Total: 19,530 29,290

Photos

(Click on a photo to view it at full size)

Sketches

(Click on a sketch to view it at full size)

Related Information

This page contains much of the information used by the City of Cambridge to assess properties. The purpose of this information is to be used only for ad valorem taxation purposes and any other use is therefore not valid.

Page was last modified on 3/8/2021 6:22 PM
Contact Us

How can we help?

Please provide as much detail below as possible so City staff can respond to your inquiry:

As a governmental entity, the Massachusetts Public Records Law applies to records made or received by the City. Any information received through use of this site is subject to the same provisions as information provided on paper.

Read our complete privacy statement


Service Requests

Enter a service request via SeeClickFix for things like missed trash pickups, potholes, etc.