U.S. flag

An official website of the United States government

Official websites use .gov
A .gov website belongs to an official government organization in the United States.

Secure .gov websites use HTTPS
A lock ( ) or https:// means you’ve safely connected to the .gov website. Share sensitive information only on official, secure websites.

Photo of houses along Bigelow Street

Property Database

1-3 Chauncy St

Property Information

Property Class >8-UNIT-APT
State Class Code 112
Zoning (Unofficial) C-2
Map/Lot 173-101
Land Area (sq. ft) 17,390

Property Value

Year of Assessment2026
Tax DistrictC8
Residential ExemptionNo
Building Value$12,200,600
Land Value$7,246,000
Assessed Value$19,446,600
Sale Price$1
Book/Page1467/70
Sale DateFebruary 20, 2015
Previous Assessed Value$19,580,800

Owner Information

Owner(s)1-3 CHARLES CHAUNCY LLC
300 INDEPENDENCE DR.
CHESTNUT HILL, MA 02467

Building Information

Commercial Building Number 1, Section 1

Exterior
StyleAPARTMENTS
Occupancy >8-UNIT-APT
Number of Stories4
Exterior Wall Type BRICK
Roof Material RUBBER-MEMBRAN
Wall Height 12
Partititions GOOD
Interior
Living Area (sq. ft.)15,520
Number of Units 19
Systems
Heat TypeWRM/COOL-AIR
Heat Fuel Gas
Plumbing GOOD
Condition & Grade
Year Built1890
Overall ConditionExcellent
Overall GradeVery-good-ex
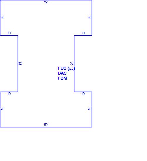
Subareas
Code Description Gross Area Living Area
BAS First Floor 3,104 3,104
FBM Basement, Finished 3,104 3,104
FUS Upper Story, Finished 9,312 9,312
Total: 15,520 15,520

Commercial Building Number 2, Section 1

Exterior
StyleAPARTMENTS
Occupancy >8-UNIT-APT
Number of Stories4
Exterior Wall Type BRICK
Roof Material TAR-GRAVEL
Wall Height 12
Partititions GOOD
Interior
Living Area (sq. ft.)15,520
Number of Units 19
Systems
Heat TypeWRM/COOL-AIR
Heat Fuel Gas
Plumbing GOOD
Condition & Grade
Year Built1890
Overall ConditionExcellent
Overall GradeVery-good-ex
Subareas
Code Description Gross Area Living Area
BAS First Floor 3,104 3,104
FBM Basement, Finished 3,104 3,104
FUS Upper Story, Finished 9,312 9,312
Total: 15,520 15,520

Photos

(Click on a photo to view it at full size)

Sketches

(Click on a sketch to view it at full size)

Related Information

This page contains much of the information used by the City of Cambridge to assess properties. The purpose of this information is to be used only for ad valorem taxation purposes and any other use is therefore not valid.

Page was last modified on 3/8/2021 6:22 PM
Contact Us

How can we help?

Please provide as much detail below as possible so City staff can respond to your inquiry:

As a governmental entity, the Massachusetts Public Records Law applies to records made or received by the City. Any information received through use of this site is subject to the same provisions as information provided on paper.

Read our complete privacy statement


Service Requests

Enter a service request via SeeClickFix for things like missed trash pickups, potholes, etc.