U.S. flag

An official website of the United States government

Official websites use .gov
A .gov website belongs to an official government organization in the United States.

Secure .gov websites use HTTPS
A lock ( ) or https:// means you’ve safely connected to the .gov website. Share sensitive information only on official, secure websites.

Photo of houses along Bigelow Street

Property Database

5 Bowdoin St

Property Information

Property Class TWO-FAM-RES
State Class Code 104
Zoning (Unofficial) B
Map/Lot 174-86
Land Area (sq. ft) 2,750

Property Value

Year of Assessment2026
Tax DistrictR6
Residential ExemptionYes
Building Value$387,300
Land Value$878,300
Assessed Value$1,265,600
Sale Price$650,000
Book/Page1261/101
Sale DateNovember 29, 2002
Previous Assessed Value$1,222,700

Owner Information

Owner(s)BIGELOW, JOHN & SHULI BIGELOW
5 BOWDOIN ST
CAMBRIDGE, MA 02138

Building Information

Residential Building Number 1, Section 1

Exterior
StyleTOWNHOUSE
Occupancy TWO-FAM-RES
Number of Stories3
Exterior Wall Type Frame-Clapbrd
Roof Type Flat
Roof Material Rubber Membrai
Interior
Living Area (sq. ft.)2,080
Number of Units 2
Total Rooms 8
Bedrooms 4
Kitchens 2
Full Baths 3
Half Baths 0
Fireplaces 1
Systems
Heat TypeHot Water
Heat Fuel Gas
Central A/C No
Condition & Grade
Year Built1961
Interior Condition Average
Overall ConditionAverage
Overall GradeFair
Parking
Open Parking2
Covered Parking0
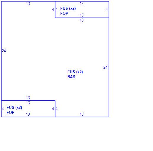
Subareas
Code Description Gross Area Living Area
BAS First Floor 624 624
FOP Porch, Open 104 0
FUS Upper Story, Finished 1,456 1,456
Total: 2,184 2,080

Photos

(Click on a photo to view it at full size)

Sketches

(Click on a sketch to view it at full size)

Related Information

This page contains much of the information used by the City of Cambridge to assess properties. The purpose of this information is to be used only for ad valorem taxation purposes and any other use is therefore not valid.

Page was last modified on 3/8/2021 6:22 PM
Contact Us

How can we help?

Please provide as much detail below as possible so City staff can respond to your inquiry:

As a governmental entity, the Massachusetts Public Records Law applies to records made or received by the City. Any information received through use of this site is subject to the same provisions as information provided on paper.

Read our complete privacy statement


Service Requests

Enter a service request via SeeClickFix for things like missed trash pickups, potholes, etc.