U.S. flag

An official website of the United States government

Official websites use .gov
A .gov website belongs to an official government organization in the United States.

Secure .gov websites use HTTPS
A lock ( ) or https:// means you’ve safely connected to the .gov website. Share sensitive information only on official, secure websites.

Photo of houses along Bigelow Street

Property Database

13 Haskell St

Property Information

Property Class TWO-FAM-RES
State Class Code 104
Zoning (Unofficial) B
Map/Lot 196-45
Land Area (sq. ft) 6,271

Property Value

Year of Assessment2026
Tax DistrictR7
Residential ExemptionYes
Building Value$2,289,000
Land Value$692,100
Assessed Value$2,981,100
Sale Price$1,830,000
Book/Page76278/132
Sale DateNovember 27, 2020
Previous Assessed Value$2,855,200

Owner Information

Owner(s)STEWARD SARAH B & JAMES G BURNS
MARK R. STEWARD & LAVERNA P ET AL
11-13 HASKELL ST
CAMBRIDGE, MA 02140

Building Information

Residential Building Number 1, Section 1

Exterior
StyleVICTORIAN
Occupancy TWO-FAM-RES
Number of Stories2.75
Exterior Wall Type Aluminum-Vinyl
Roof Type Gable
Roof Material Aspahlt Shingl
Interior
Living Area (sq. ft.)3,667
Number of Units 2
Total Rooms 14
Bedrooms 6
Kitchens 2
Full Baths 5
Half Baths 1
Fireplaces 0
Systems
Heat TypeForced Air
Heat Fuel Electric
Central A/C Yes
Condition & Grade
Year Built1895
Interior Condition Very Good
Overall ConditionVery Good
Overall GradeGood Very Good
Parking
Open Parking2
Covered Parking1
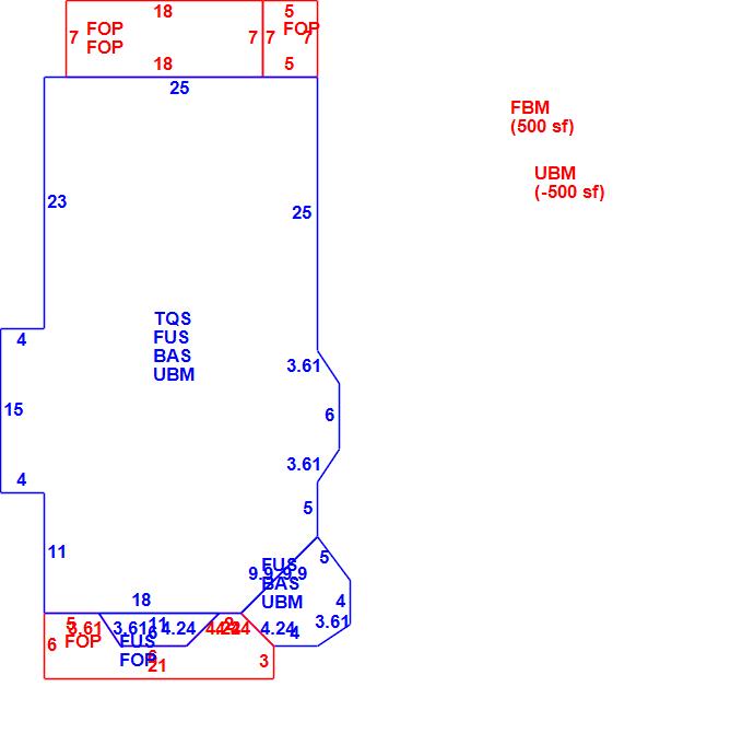
Subareas
Code Description Gross Area Living Area
BAS First Floor 1,341 1,341
FBM Basement, Finished 500 0
FOP Porch, Open 409 0
FUS Upper Story, Finished 1,367 1,367
TQS Three Quarter Story 1,279 959
UBM Basement 841 0
Total: 5,737 3,667
Extra Features / Outbuildings
DescriptionGAR-1.0S
Number of Units391.00
Unit TypeSF
DescriptionSOLAR PANELS
Number of Units24.00
Unit TypeUNIT

Photos

(Click on a photo to view it at full size)

Sketches

(Click on a sketch to view it at full size)

Related Information

This page contains much of the information used by the City of Cambridge to assess properties. The purpose of this information is to be used only for ad valorem taxation purposes and any other use is therefore not valid.

Page was last modified on 3/8/2021 6:22 PM
Contact Us

How can we help?

Please provide as much detail below as possible so City staff can respond to your inquiry:

As a governmental entity, the Massachusetts Public Records Law applies to records made or received by the City. Any information received through use of this site is subject to the same provisions as information provided on paper.

Read our complete privacy statement


Service Requests

Enter a service request via SeeClickFix for things like missed trash pickups, potholes, etc.