U.S. flag

An official website of the United States government

Official websites use .gov
A .gov website belongs to an official government organization in the United States.

Secure .gov websites use HTTPS
A lock ( ) or https:// means you’ve safely connected to the .gov website. Share sensitive information only on official, secure websites.

Photo of houses along Bigelow Street

Property Database

31 Hubbard Ave

Property Information

Property Class SNGL-FAM-RES
State Class Code 101
Zoning (Unofficial) C-1
Map/Lot 202-135
Land Area (sq. ft) 1,829

Property Value

Year of Assessment2026
Tax DistrictR17
Residential ExemptionYes
Building Value$1,193,000
Land Value$504,800
Assessed Value$1,697,800
Sale Price$1,450,000
Book/Page70851/181
Sale DateApril 10, 2018
Previous Assessed Value$1,629,800

Owner Information

Owner(s)BASU, GAURAB & SUDHA NATARAJAN
31 HUBBARD AVE
CAMBRIDGE, MA 02140

Building Information

Residential Building Number 1, Section 1

Exterior
StyleCONVENTIONAL
Occupancy SNGL-FAM-RES
Number of Stories2.75
Exterior Wall Type Frame-Clapbrd
Roof Type Gable
Roof Material Aspahlt Shingl
Interior
Living Area (sq. ft.)1,964
Number of Units 1
Total Rooms 6
Bedrooms 4
Kitchens 1
Full Baths 2
Half Baths 1
Fireplaces 1
Systems
Heat TypeHot Water
Heat Fuel Gas
Central A/C No
Condition & Grade
Year Built1995
Interior Condition Good
Overall ConditionVery Good
Overall GradeGood
Parking
Open Parking1
Covered Parking0
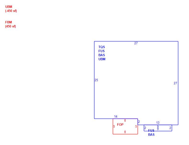
Subareas
Code Description Gross Area Living Area
BAS First Floor 719 719
FBM Basement, Finished 450 0
FOP Porch, Open 40 0
FUS Upper Story, Finished 719 719
TQS Three Quarter Story 701 526
UBM Basement 251 0
Total: 2,880 1,964

Photos

(Click on a photo to view it at full size)

Sketches

(Click on a sketch to view it at full size)

Related Information

This page contains much of the information used by the City of Cambridge to assess properties. The purpose of this information is to be used only for ad valorem taxation purposes and any other use is therefore not valid.

Page was last modified on 3/8/2021 6:22 PM
Contact Us

How can we help?

Please provide as much detail below as possible so City staff can respond to your inquiry:

As a governmental entity, the Massachusetts Public Records Law applies to records made or received by the City. Any information received through use of this site is subject to the same provisions as information provided on paper.

Read our complete privacy statement


Service Requests

Enter a service request via SeeClickFix for things like missed trash pickups, potholes, etc.