U.S. flag

An official website of the United States government

Official websites use .gov
A .gov website belongs to an official government organization in the United States.

Secure .gov websites use HTTPS
A lock ( ) or https:// means you’ve safely connected to the .gov website. Share sensitive information only on official, secure websites.

Photo of houses along Bigelow Street

Property Database

620 Cambridge St

Property Information

Property Class MULTIUSE-COM
State Class Code 31
Zoning (Unofficial) BA
Map/Lot 34-8
Land Area (sq. ft) 6,251

Property Value

Year of Assessment2026
Tax DistrictC1
Residential ExemptionNo
Building Value$1,511,500
Land Value$699,240
Assessed Value$2,210,740
Sale Price$1,325,000
Book/Page62848/323
Sale DateOctober 29, 2013
Previous Assessed Value$2,418,720

Owner Information

Owner(s)SHREE MANAKAMANA LLC
620 CAMBRIDGE ST
CAMBRIDGE, MA 02141

Building Information

Commercial Building Number 1, Section 1

Exterior
StyleRETAIL-STORE
Occupancy RETAIL-STORE
Number of Stories2
Exterior Wall Type BRICK
Roof Material RUBBER-MEMBRAN
Wall Height 12
Partititions AVERAGE
Interior
Living Area (sq. ft.)8,201
Number of Units 2
Systems
Heat TypeSTEAM
Heat Fuel Oil
Plumbing AVERAGE
Condition & Grade
Year Built1950
Overall ConditionAverage
Overall GradeAverage
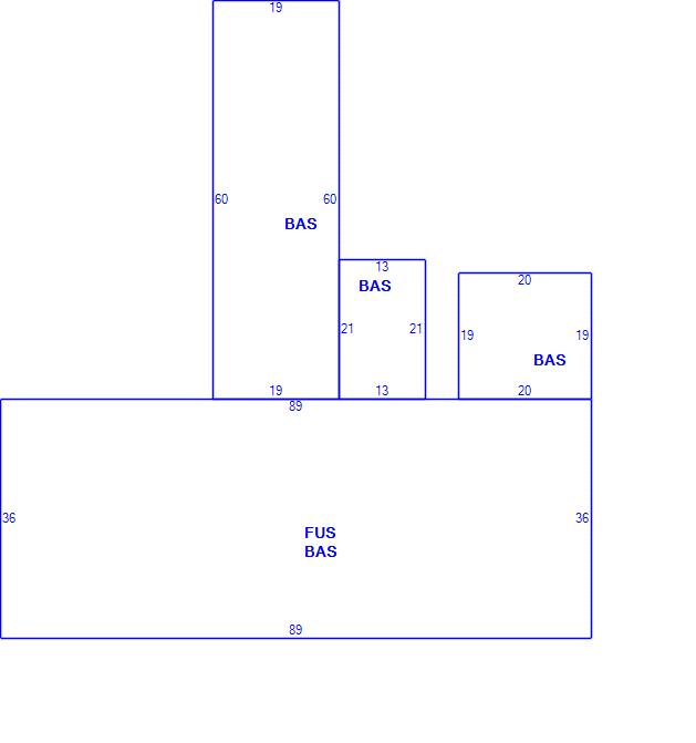
Subareas
Code Description Gross Area Living Area
BAS First Floor 4,997 4,997
FUS Upper Story, Finished 3,204 3,204
Total: 8,201 8,201

Photos

(Click on a photo to view it at full size)

Sketches

(Click on a sketch to view it at full size)

Related Information

This page contains much of the information used by the City of Cambridge to assess properties. The purpose of this information is to be used only for ad valorem taxation purposes and any other use is therefore not valid.

Page was last modified on 3/8/2021 6:22 PM
Contact Us

How can we help?

Please provide as much detail below as possible so City staff can respond to your inquiry:

As a governmental entity, the Massachusetts Public Records Law applies to records made or received by the City. Any information received through use of this site is subject to the same provisions as information provided on paper.

Read our complete privacy statement


Service Requests

Enter a service request via SeeClickFix for things like missed trash pickups, potholes, etc.