U.S. flag

An official website of the United States government

Official websites use .gov
A .gov website belongs to an official government organization in the United States.

Secure .gov websites use HTTPS
A lock ( ) or https:// means you’ve safely connected to the .gov website. Share sensitive information only on official, secure websites.

Photo of houses along Bigelow Street

Property Database

16 Buckingham St

Property Information

Property Class Private College, University
State Class Code 942
Zoning (Unofficial) A-2
Map/Lot 224-32
Land Area (sq. ft) 22,000

Property Value

Year of Assessment2026
Tax DistrictC7
Residential ExemptionNo
Building Value$9,426,300
Land Value$2,402,400
Assessed Value$11,828,700
Sale Price$0
Book/Page/
Sale DateJanuary 1, 1900
Previous Assessed Value$12,372,100

Owner Information

Owner(s)BUCKINGHAM BROWNE AND NICHOLS SCHOOL
80 GERRYS LANDING ROAD
CAMBRIDGE, MA 02138

Building Information

Commercial Building Number 1, Section 1

Exterior
StyleELEM SCHOOL
Occupancy Private College, University
Number of Stories2
Exterior Wall Type BRICK
Roof Material SLATE-CLAY
Wall Height 12
Partititions AVERAGE
Interior
Living Area (sq. ft.)24,910
Number of Units 1
Systems
Heat TypeHOT-WATER
Heat Fuel Gas
Plumbing AVERAGE
Condition & Grade
Year Built1881
Overall ConditionGood
Overall GradeGood
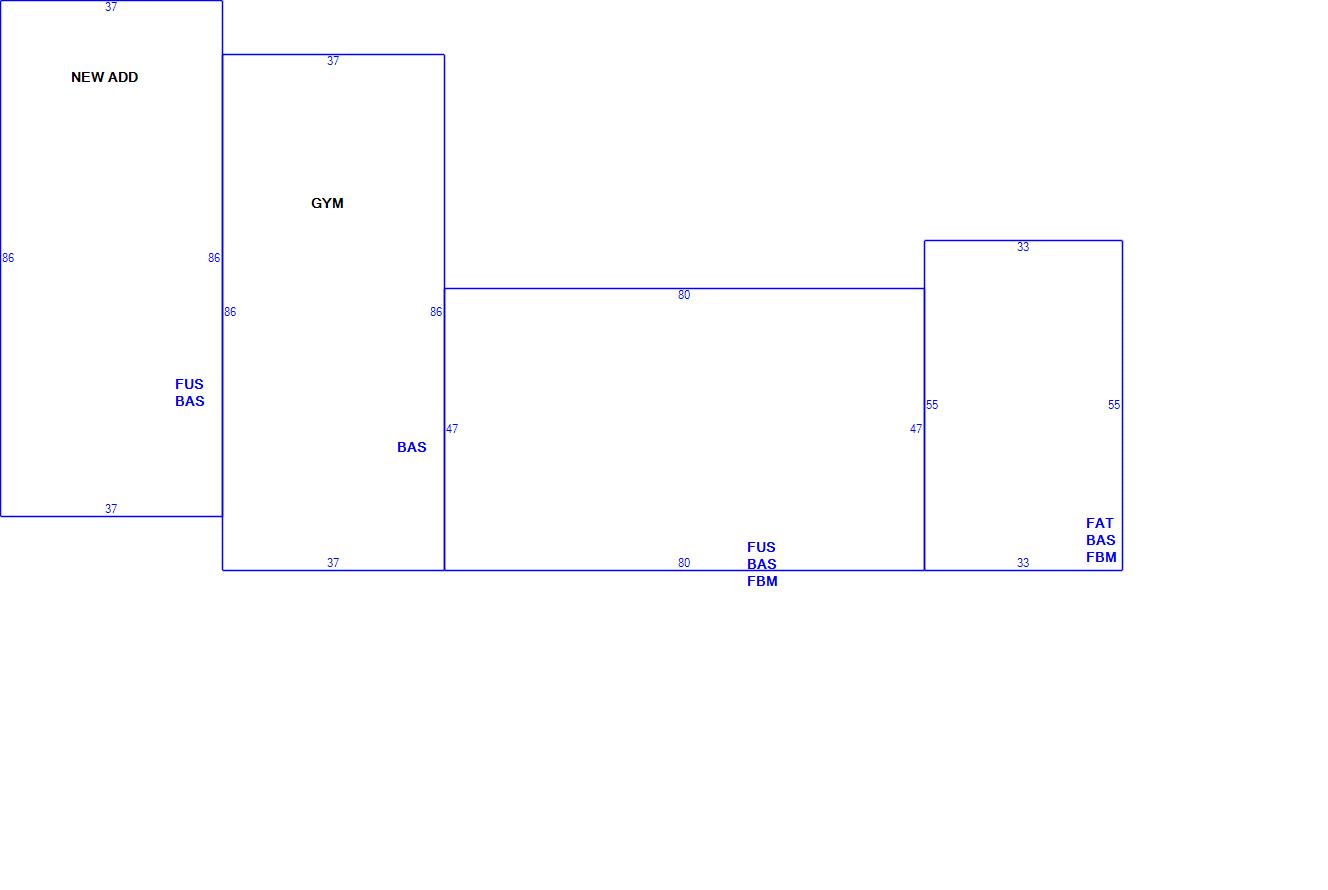
Subareas
Code Description Gross Area Living Area
BAS First Floor 11,939 11,939
FAT Finished Attic 1,815 454
FBM Basement, Finished 5,575 5,575
FUS Upper Story, Finished 6,942 6,942
Total: 26,271 24,910

Photos

(Click on a photo to view it at full size)

Sketches

(Click on a sketch to view it at full size)

Related Information

This page contains much of the information used by the City of Cambridge to assess properties. The purpose of this information is to be used only for ad valorem taxation purposes and any other use is therefore not valid.

Page was last modified on 3/8/2021 6:22 PM
Contact Us

How can we help?

Please provide as much detail below as possible so City staff can respond to your inquiry:

As a governmental entity, the Massachusetts Public Records Law applies to records made or received by the City. Any information received through use of this site is subject to the same provisions as information provided on paper.

Read our complete privacy statement


Service Requests

Enter a service request via SeeClickFix for things like missed trash pickups, potholes, etc.