U.S. flag

An official website of the United States government

Official websites use .gov
A .gov website belongs to an official government organization in the United States.

Secure .gov websites use HTTPS
A lock ( ) or https:// means you’ve safely connected to the .gov website. Share sensitive information only on official, secure websites.

Photo of houses along Bigelow Street

Property Database

353 Huron Ave

Property Information

Property Class BANK
State Class Code 341
Zoning (Unofficial) BA-1
Map/Lot 233-89
Land Area (sq. ft) 5,150

Property Value

Year of Assessment2026
Tax DistrictC10
Residential ExemptionNo
Building Value$2,459,400
Land Value$772,500
Assessed Value$3,231,900
Sale Price$290,000
Book/Page15956/224
Sale DateJanuary 4, 1985
Previous Assessed Value$3,626,800

Owner Information

Owner(s)CAMBRIDGE TRUST COMPANY
1336 MASSACHUSETTS AVE.
CAMBRIDGE, MA 02138

Building Information

Commercial Building Number 1, Section 1

Exterior
StyleBANK
Occupancy BANK
Number of Stories2
Exterior Wall Type BRICK
Roof Material RUBBER-MEMBRAN
Wall Height 12
Partititions AVERAGE
Interior
Living Area (sq. ft.)7,346
Number of Units 2
Systems
Heat TypeHEAT-PUMP
Heat Fuel Electric
Plumbing GOOD
Condition & Grade
Year Built1987
Overall ConditionExcellent
Overall GradeGood
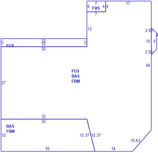
Subareas
Code Description Gross Area Living Area
BAS First Floor 2,536 2,536
FBM Basement, Finished 2,536 2,536
FUS Upper Story, Finished 2,274 2,274
Total: 7,346 7,346

Photos

(Click on a photo to view it at full size)

Sketches

(Click on a sketch to view it at full size)

Related Information

This page contains much of the information used by the City of Cambridge to assess properties. The purpose of this information is to be used only for ad valorem taxation purposes and any other use is therefore not valid.

Page was last modified on 3/8/2021 6:22 PM
Contact Us

How can we help?

Please provide as much detail below as possible so City staff can respond to your inquiry:

As a governmental entity, the Massachusetts Public Records Law applies to records made or received by the City. Any information received through use of this site is subject to the same provisions as information provided on paper.

Read our complete privacy statement


Service Requests

Enter a service request via SeeClickFix for things like missed trash pickups, potholes, etc.