U.S. flag

An official website of the United States government

Official websites use .gov
A .gov website belongs to an official government organization in the United States.

Secure .gov websites use HTTPS
A lock ( ) or https:// means you’ve safely connected to the .gov website. Share sensitive information only on official, secure websites.

Photo of houses along Bigelow Street

Property Database

47 Reservoir St

Property Information

Property Class SNGL-FAM-RES
State Class Code 101
Zoning (Unofficial) A-1
Map/Lot 237-75
Land Area (sq. ft) 14,462

Property Value

Year of Assessment2026
Tax DistrictR10
Residential ExemptionYes
Building Value$1,734,200
Land Value$3,192,600
Assessed Value$4,926,800
Sale Price$160,000
Book/Page13729/615
Sale DateJuly 2, 1979
Previous Assessed Value$4,846,000

Owner Information

Owner(s)GILMORE, JOHN A. D. &
ELIZABETH C. GILMORE
47 RESERVOIR ST
CAMBRIDGE, MA 02138-3335

Building Information

Residential Building Number 1, Section 1

Exterior
StyleCOLONIAL
Occupancy SNGL-FAM-RES
Number of Stories2.5
Exterior Wall Type Frame-Clapbrd
Roof Type Gable
Roof Material Aspahlt Shingl
Interior
Living Area (sq. ft.)3,561
Number of Units 1
Total Rooms 8
Bedrooms 5
Kitchens 1
Full Baths 3
Half Baths 1
Fireplaces 2
Systems
Heat TypeHot Water
Heat Fuel Gas
Central A/C No
Condition & Grade
Year Built1886
Interior Condition Very Good
Overall ConditionGood
Overall GradeGood Very Good
Parking
Open Parking0
Covered Parking1
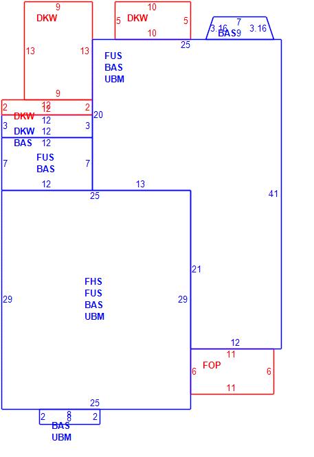
Subareas
Code Description Gross Area Living Area
BAS First Floor 1,637 1,637
DKW Deck Wood 227 0
FHS Half Story, Finished 725 363
FOP Porch, Open 66 0
FUS Upper Story, Finished 1,561 1,561
UBM Basement 1,493 0
Total: 5,709 3,561
Extra Features / Outbuildings
DescriptionGAR-1.0S
Number of Units240.00
Unit TypeSF
DescriptionPATIO-CONCRT
Number of Units140.00
Unit TypeSF

Photos

(Click on a photo to view it at full size)

Sketches

(Click on a sketch to view it at full size)

Related Information

This page contains much of the information used by the City of Cambridge to assess properties. The purpose of this information is to be used only for ad valorem taxation purposes and any other use is therefore not valid.

Page was last modified on 3/8/2021 6:22 PM
Contact Us

How can we help?

Please provide as much detail below as possible so City staff can respond to your inquiry:

As a governmental entity, the Massachusetts Public Records Law applies to records made or received by the City. Any information received through use of this site is subject to the same provisions as information provided on paper.

Read our complete privacy statement


Service Requests

Enter a service request via SeeClickFix for things like missed trash pickups, potholes, etc.