U.S. flag

An official website of the United States government

Official websites use .gov
A .gov website belongs to an official government organization in the United States.

Secure .gov websites use HTTPS
A lock ( ) or https:// means you’ve safely connected to the .gov website. Share sensitive information only on official, secure websites.

Photo of houses along Bigelow Street

Property Database

59 Larchwood Dr

Property Information

Property Class SNGL-FAM-RES
State Class Code 101
Zoning (Unofficial) A-2
Map/Lot 251-182
Land Area (sq. ft) 5,569

Property Value

Year of Assessment2026
Tax DistrictR9
Residential ExemptionYes
Building Value$1,049,500
Land Value$1,010,100
Assessed Value$2,059,600
Sale Price$771,500
Book/Page28656/157
Sale DateJune 2, 1998
Previous Assessed Value$1,968,800

Owner Information

Owner(s)RAWN, CAROL LEE & W. TIMOTHY MACKEY
59 LARCHWOOD DRIVE
CAMBRIDGE, MA 02138-4638

Building Information

Residential Building Number 1, Section 1

Exterior
StyleCOLONIAL
Occupancy SNGL-FAM-RES
Number of Stories2
Exterior Wall Type Frame-Clapbrd
Roof Type Gambrel
Roof Material Slate Clay
Interior
Living Area (sq. ft.)2,218
Number of Units 1
Total Rooms 8
Bedrooms 3
Kitchens 1
Full Baths 2
Half Baths 1
Fireplaces 1
Systems
Heat TypeHot Water
Heat Fuel Gas
Central A/C Yes
Condition & Grade
Year Built1920
Interior Condition Good
Overall ConditionGood
Overall GradeGood
Parking
Open Parking2
Covered Parking0
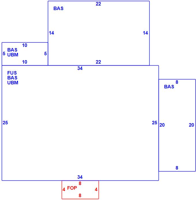
Subareas
Code Description Gross Area Living Area
BAS First Floor 1,368 1,368
FOP Porch, Open 32 0
FUS Upper Story, Finished 850 850
UBM Basement 900 0
Total: 3,150 2,218
Extra Features / Outbuildings
DescriptionSHED-IMPLMNT
Number of Units400.00
Unit Type

Photos

(Click on a photo to view it at full size)

Sketches

(Click on a sketch to view it at full size)

Related Information

This page contains much of the information used by the City of Cambridge to assess properties. The purpose of this information is to be used only for ad valorem taxation purposes and any other use is therefore not valid.

Page was last modified on 3/8/2021 6:22 PM
Contact Us

How can we help?

Please provide as much detail below as possible so City staff can respond to your inquiry:

As a governmental entity, the Massachusetts Public Records Law applies to records made or received by the City. Any information received through use of this site is subject to the same provisions as information provided on paper.

Read our complete privacy statement


Service Requests

Enter a service request via SeeClickFix for things like missed trash pickups, potholes, etc.