U.S. flag

An official website of the United States government

Official websites use .gov
A .gov website belongs to an official government organization in the United States.

Secure .gov websites use HTTPS
A lock ( ) or https:// means you’ve safely connected to the .gov website. Share sensitive information only on official, secure websites.

Photo of houses along Bigelow Street

Property Database

176 Holworthy St

Property Information

Property Class SNGL-FAM-RES
State Class Code 101
Zoning (Unofficial) B
Map/Lot 258-36
Land Area (sq. ft) 3,073

Property Value

Year of Assessment2026
Tax DistrictR7
Residential ExemptionYes
Building Value$521,100
Land Value$474,800
Assessed Value$995,900
Sale Price$210,000
Book/Page1126/70
Sale DateMay 10, 1994
Previous Assessed Value$971,500

Owner Information

Owner(s)CHANDOHA, PAULA M. & WILLIAM W. AMARAL
176 HOLWORTHY ST
CAMBRIDGE, MA 02138

Building Information

Residential Building Number 1, Section 1

Exterior
StyleCONVENTIONAL
Occupancy SNGL-FAM-RES
Number of Stories2
Exterior Wall Type Aluminum-Vinyl
Roof Type Gable
Roof Material Aspahlt Shingl
Interior
Living Area (sq. ft.)1,405
Number of Units 1
Total Rooms 7
Bedrooms 3
Kitchens 1
Full Baths 1
Half Baths 0
Fireplaces 1
Systems
Heat TypeHot Water
Heat Fuel Gas
Central A/C No
Condition & Grade
Year Built1937
Interior Condition Good
Overall ConditionAverage
Overall GradeGood
Parking
Open Parking2
Covered Parking0
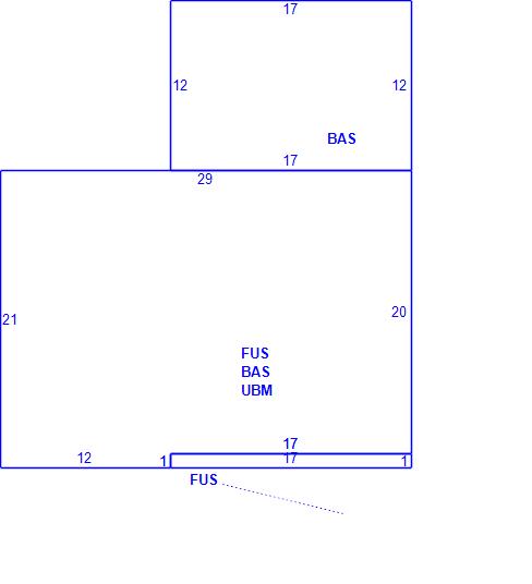
Subareas
Code Description Gross Area Living Area
BAS First Floor 796 796
FUS Upper Story, Finished 609 609
UBM Basement 592 0
Total: 1,997 1,405

Photos

(Click on a photo to view it at full size)

Sketches

(Click on a sketch to view it at full size)

Related Information

This page contains much of the information used by the City of Cambridge to assess properties. The purpose of this information is to be used only for ad valorem taxation purposes and any other use is therefore not valid.

Page was last modified on 3/8/2021 6:22 PM
Contact Us

How can we help?

Please provide as much detail below as possible so City staff can respond to your inquiry:

As a governmental entity, the Massachusetts Public Records Law applies to records made or received by the City. Any information received through use of this site is subject to the same provisions as information provided on paper.

Read our complete privacy statement


Service Requests

Enter a service request via SeeClickFix for things like missed trash pickups, potholes, etc.