U.S. flag

An official website of the United States government

Official websites use .gov
A .gov website belongs to an official government organization in the United States.

Secure .gov websites use HTTPS
A lock ( ) or https:// means you’ve safely connected to the .gov website. Share sensitive information only on official, secure websites.

Photo of houses along Bigelow Street

Property Database

23 Bay State Rd

Property Information

Property Class CLEAN-MANUF
State Class Code 407
Zoning (Unofficial) C-1A
Map/Lot 273-43
Land Area (sq. ft) 12,500

Property Value

Year of Assessment2026
Tax DistrictC10
Residential ExemptionNo
Building Value$366,100
Land Value$1,500,000
Assessed Value$1,866,100
Sale Price$1,150,000
Book/Page1294/170
Sale DateDecember 31, 2004
Previous Assessed Value$2,196,100

Owner Information

Owner(s)23 BAY STATE ROAD LIMITED PARTNERSHIP
51 NEW ST.
CAMBRIDGE, MA 02139

Building Information

Commercial Building Number 1, Section 1

Exterior
StyleINDUST-MFCTR
Occupancy CLEAN-MANUF
Number of Stories2
Exterior Wall Type BRICK-VENEER
Roof Material TAR-GRAVEL
Wall Height 12
Partititions AVERAGE
Interior
Living Area (sq. ft.)10,810
Number of Units 1
Systems
Heat TypeFORCED-AIR
Heat Fuel Gas
Plumbing AVERAGE
Condition & Grade
Year Built1964
Overall ConditionAverage
Overall GradeFair
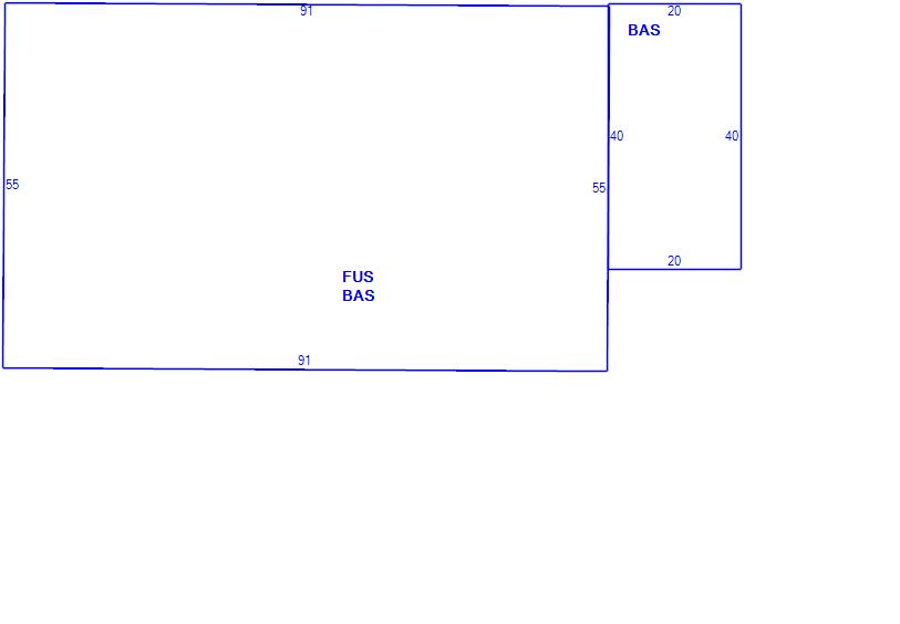
Subareas
Code Description Gross Area Living Area
BAS First Floor 5,805 5,805
FUS Upper Story, Finished 5,005 5,005
Total: 10,810 10,810

Photos

(Click on a photo to view it at full size)

Sketches

(Click on a sketch to view it at full size)

Related Information

This page contains much of the information used by the City of Cambridge to assess properties. The purpose of this information is to be used only for ad valorem taxation purposes and any other use is therefore not valid.

Page was last modified on 3/8/2021 6:22 PM
Contact Us

How can we help?

Please provide as much detail below as possible so City staff can respond to your inquiry:

As a governmental entity, the Massachusetts Public Records Law applies to records made or received by the City. Any information received through use of this site is subject to the same provisions as information provided on paper.

Read our complete privacy statement


Service Requests

Enter a service request via SeeClickFix for things like missed trash pickups, potholes, etc.