U.S. flag

An official website of the United States government

Official websites use .gov
A .gov website belongs to an official government organization in the United States.

Secure .gov websites use HTTPS
A lock ( ) or https:// means you’ve safely connected to the .gov website. Share sensitive information only on official, secure websites.

Photo of houses along Bigelow Street

Property Database

84 Griswold St

Property Information

Property Class SNGL-FAM-RES
State Class Code 101
Zoning (Unofficial) B
Map/Lot 267B-193
Land Area (sq. ft) 4,400

Property Value

Year of Assessment2026
Tax DistrictR7
Residential ExemptionYes
Building Value$394,200
Land Value$533,700
Assessed Value$927,900
Sale Price$79,000
Book/Page15241/374
Sale DateSeptember 29, 1983
Previous Assessed Value$909,400

Owner Information

Owner(s)CORTIZAS, ANTHONY P., JR.
84 GRISWOLD ST
CAMBRIDGE, MA 02138-1012

Building Information

Residential Building Number 1, Section 1

Exterior
StyleCOLONIAL
Occupancy SNGL-FAM-RES
Number of Stories2
Exterior Wall Type Aluminum-Vinyl
Roof Type Gable
Roof Material Aspahlt Shingl
Interior
Living Area (sq. ft.)1,184
Number of Units 1
Total Rooms 6
Bedrooms 3
Kitchens 1
Full Baths 1
Half Baths 0
Fireplaces 0
Systems
Heat TypeSteam
Heat Fuel Oil
Central A/C No
Condition & Grade
Year Built1943
Interior Condition Average
Overall ConditionAverage
Overall GradeAverage
Parking
Open Parking1
Covered Parking0
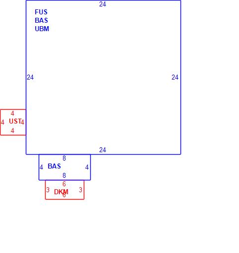
Subareas
Code Description Gross Area Living Area
BAS First Floor 608 608
DKM Deck Masonry 18 0
FUS Upper Story, Finished 576 576
UBM Basement 576 0
UST Utility, Storage, Unfinished 16 0
Total: 1,794 1,184

Photos

(Click on a photo to view it at full size)

Sketches

(Click on a sketch to view it at full size)

Related Information

This page contains much of the information used by the City of Cambridge to assess properties. The purpose of this information is to be used only for ad valorem taxation purposes and any other use is therefore not valid.

Page was last modified on 3/8/2021 6:22 PM
Contact Us

How can we help?

Please provide as much detail below as possible so City staff can respond to your inquiry:

As a governmental entity, the Massachusetts Public Records Law applies to records made or received by the City. Any information received through use of this site is subject to the same provisions as information provided on paper.

Read our complete privacy statement


Service Requests

Enter a service request via SeeClickFix for things like missed trash pickups, potholes, etc.