U.S. flag

An official website of the United States government

Official websites use .gov
A .gov website belongs to an official government organization in the United States.

Secure .gov websites use HTTPS
A lock ( ) or https:// means you’ve safely connected to the .gov website. Share sensitive information only on official, secure websites.

Photo of houses along Bigelow Street

Property Database

446 Cambridgepark Dr

Property Information

Property Class GEN-OFFICE
State Class Code 340
Zoning (Unofficial) O-2A
Map/Lot 268C-35
Land Area (sq. ft) 16,172

Property Value

Year of Assessment2026
Tax DistrictC10
Residential ExemptionNo
Building Value$613,100
Land Value$1,940,600
Assessed Value$2,553,700
Sale Price$4,509,000
Book/Page44958/509
Sale DateApril 7, 2005
Previous Assessed Value$2,991,300

Owner Information

Owner(s)APPLETREEWOOD, LLC.
C/O MCCARTHY LEGAL SERVICES LLC.
1188 CENTRE ST.
NEWTON CENTER, MA 02459

Building Information

Commercial Building Number 1, Section 1

Exterior
StyleOFFICE
Occupancy GEN-OFFICE
Number of Stories1
Exterior Wall Type CONCR-BLOCK
Roof Material TAR-GRAVEL
Wall Height 12
Partititions AVERAGE
Interior
Living Area (sq. ft.)9,042
Number of Units 1
Systems
Heat TypeHOT-WATER
Heat Fuel Gas
Plumbing AVERAGE
Condition & Grade
Year Built1959
Overall ConditionAverage
Overall GradeFair
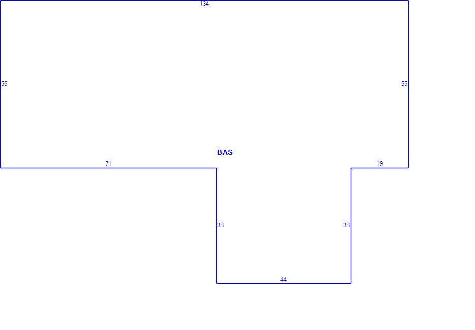
Subareas
Code Description Gross Area Living Area
BAS First Floor 9,042 9,042
Total: 9,042 9,042
Extra Features / Outbuildings
DescriptionPAVING-ASPHT
Number of Units6000.00
Unit TypeSF

Photos

(Click on a photo to view it at full size)

Sketches

(Click on a sketch to view it at full size)

Related Information

This page contains much of the information used by the City of Cambridge to assess properties. The purpose of this information is to be used only for ad valorem taxation purposes and any other use is therefore not valid.

Page was last modified on 3/8/2021 6:22 PM
Contact Us

How can we help?

Please provide as much detail below as possible so City staff can respond to your inquiry:

As a governmental entity, the Massachusetts Public Records Law applies to records made or received by the City. Any information received through use of this site is subject to the same provisions as information provided on paper.

Read our complete privacy statement


Service Requests

Enter a service request via SeeClickFix for things like missed trash pickups, potholes, etc.