U.S. flag

An official website of the United States government

Official websites use .gov
A .gov website belongs to an official government organization in the United States.

Secure .gov websites use HTTPS
A lock ( ) or https:// means you’ve safely connected to the .gov website. Share sensitive information only on official, secure websites.

Photo of houses along Bigelow Street

Property Database

Cambridgepark Dr

Property Information

Property Class Transportation Authority
State Class Code 972
Zoning (Unofficial) O-2A
Map/Lot 268C-37
Land Area (sq. ft) 10,000

Property Value

Year of Assessment2026
Tax DistrictC10
Residential ExemptionNo
Building Value$626,400
Land Value$928,800
Assessed Value$1,555,200
Sale Price$0
Book/Page/
Sale DateJanuary 1, 1900
Previous Assessed Value$1,761,600

Owner Information

Owner(s)MASSACHUSETTS BAY TRANSPORTATION
AUTHORITY
10 PARK PLAZA
BOSTON, MA 02116

Building Information

Commercial Building Number 1, Section 1

Exterior
StylePARKG-STRUCT
Occupancy Transportation Authority
Number of Stories1
Exterior Wall Type BRICK
Roof Material TAR-GRAVEL
Wall Height 10
Partititions AVERAGE
Interior
Living Area (sq. ft.)9,016
Number of Units 21
Systems
Heat TypeHOT-WATER
Heat Fuel
Plumbing AVERAGE
Condition & Grade
Year Built1940
Overall ConditionFair
Overall GradeAverage
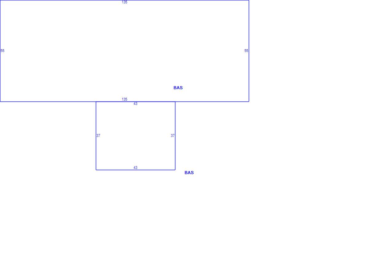
Subareas
Code Description Gross Area Living Area
BAS First Floor 9,016 9,016
Total: 9,016 9,016

Photos

(Click on a photo to view it at full size)

Sketches

(Click on a sketch to view it at full size)

Related Information

This page contains much of the information used by the City of Cambridge to assess properties. The purpose of this information is to be used only for ad valorem taxation purposes and any other use is therefore not valid.

Page was last modified on 3/8/2021 6:22 PM
Contact Us

How can we help?

Please provide as much detail below as possible so City staff can respond to your inquiry:

As a governmental entity, the Massachusetts Public Records Law applies to records made or received by the City. Any information received through use of this site is subject to the same provisions as information provided on paper.

Read our complete privacy statement


Service Requests

Enter a service request via SeeClickFix for things like missed trash pickups, potholes, etc.