U.S. flag

An official website of the United States government

Official websites use .gov
A .gov website belongs to an official government organization in the United States.

Secure .gov websites use HTTPS
A lock ( ) or https:// means you’ve safely connected to the .gov website. Share sensitive information only on official, secure websites.

Photo of houses along Bigelow Street

Property Database

155 Fawcett St

Property Information

Property Class MANUFACTURNG
State Class Code 400
Zoning (Unofficial) IB-2
Map/Lot 267.4-264
Land Area (sq. ft) 53,600

Property Value

Year of Assessment2026
Tax DistrictC10
Residential ExemptionNo
Building Value$1,905,200
Land Value$4,824,000
Assessed Value$6,729,200
Sale Price$10,700,000
Book/Page67586/345
Sale DateJuly 8, 2016
Previous Assessed Value$7,476,000

Owner Information

Owner(s)ART ROCKS LLC,
C/O BAY MANAGEMENT CORP.
990 WASHINGTON STREET
DEDHAM, MA 02026

Building Information

Commercial Building Number 1, Section 1

Exterior
StyleINDUST-MFCTR
Occupancy MANUFACTURNG
Number of Stories2
Exterior Wall Type CONCR-BLOCK
Roof Material TAR-GRAVEL
Wall Height 12
Partititions AVERAGE
Interior
Living Area (sq. ft.)37,086
Number of Units 1
Systems
Heat TypeFORCED-AIR
Heat Fuel Oil
Plumbing FAIR
Condition & Grade
Year Built1952
Overall ConditionFair
Overall GradeFair
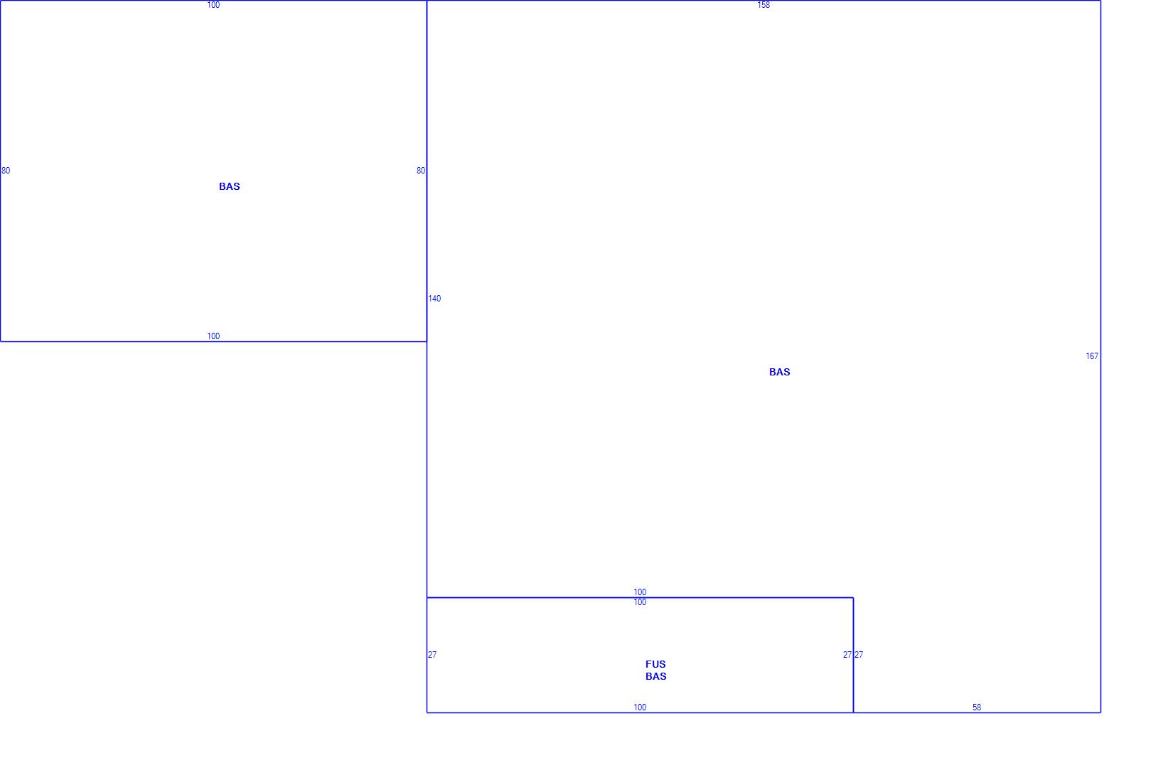
Subareas
Code Description Gross Area Living Area
BAS First Floor 34,386 34,386
FUS Upper Story, Finished 2,700 2,700
Total: 37,086 37,086
Extra Features / Outbuildings
DescriptionPAVING-ASPHT
Number of Units8000.00
Unit TypeSF
DescriptionSOLAR PANELS
Number of Units
Unit TypeU

Photos

(Click on a photo to view it at full size)

Sketches

(Click on a sketch to view it at full size)

Related Information

This page contains much of the information used by the City of Cambridge to assess properties. The purpose of this information is to be used only for ad valorem taxation purposes and any other use is therefore not valid.

Page was last modified on 3/8/2021 6:22 PM
Contact Us

How can we help?

Please provide as much detail below as possible so City staff can respond to your inquiry:

As a governmental entity, the Massachusetts Public Records Law applies to records made or received by the City. Any information received through use of this site is subject to the same provisions as information provided on paper.

Read our complete privacy statement


Service Requests

Enter a service request via SeeClickFix for things like missed trash pickups, potholes, etc.