U.S. flag

An official website of the United States government

Official websites use .gov
A .gov website belongs to an official government organization in the United States.

Secure .gov websites use HTTPS
A lock ( ) or https:// means you’ve safely connected to the .gov website. Share sensitive information only on official, secure websites.

Photo of houses along Bigelow Street

Property Database

210 Broadway

Property Information

Property Class INV-OFFICE
State Class Code 346
Zoning (Unofficial) IA-2
Map/Lot 42-97
Land Area (sq. ft) 36,646

Property Value

Year of Assessment2026
Tax DistrictC2
Residential ExemptionNo
Building Value$16,836,000
Land Value$19,953,700
Assessed Value$36,789,700
Sale Price$23,452,420
Book/Page1411/125
Sale DateFebruary 9, 2012
Previous Assessed Value$46,546,800

Owner Information

Owner(s)BMR-BROADWAY LLC.
C/O RYAN LLC
P.O. BOX 847
CARLSBAD, CA 92018

Building Information

Commercial Building Number 1, Section 1

Exterior
StyleOFFICE
Occupancy INV-OFFICE
Number of Stories4
Exterior Wall Type METAL-GLASS
Roof Material RUBBER-MEMBRAN
Wall Height 12
Partititions GOOD
Interior
Living Area (sq. ft.)65,384
Number of Units 1
Systems
Heat TypeHOT/CHLD-WTR
Heat Fuel Gas
Plumbing GOOD
Condition & Grade
Year Built1999
Overall ConditionAverage
Overall GradeGood
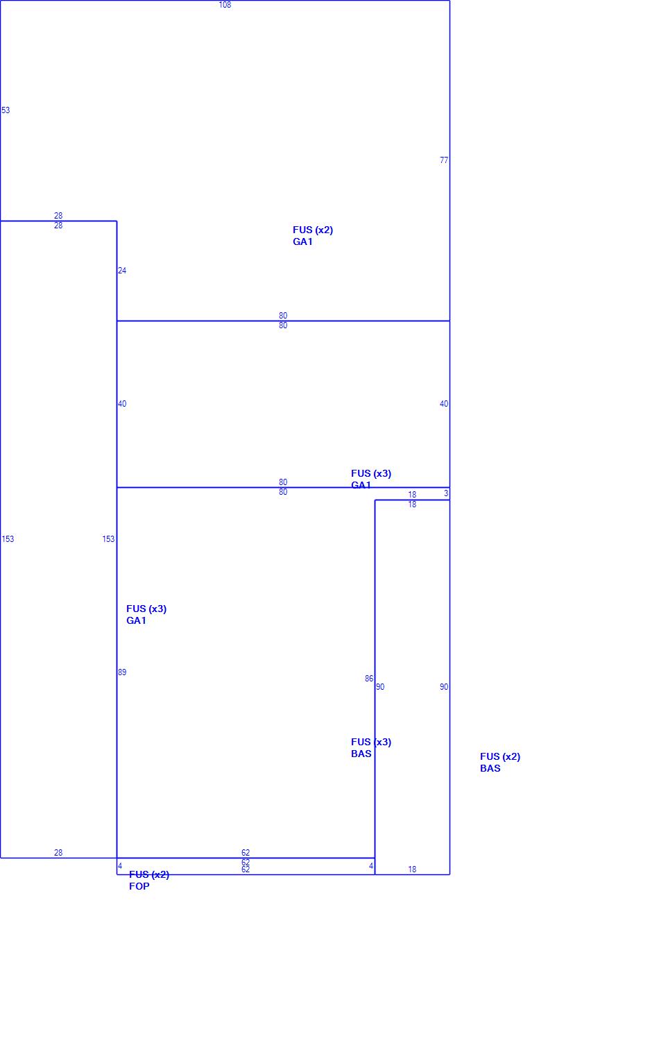
Subareas
Code Description Gross Area Living Area
BAS First Floor 7,192 7,192
FOP Porch, Open 248 0
FUS Upper Story, Finished 58,192 58,192
GA1 Garage 15,128 0
Total: 80,760 65,384
Extra Features / Outbuildings
DescriptionELEV-PSNGR
Number of Units2.00
Unit TypeU
DescriptionPAVING-ASPHT
Number of Units5000.00
Unit TypeSF

Photos

(Click on a photo to view it at full size)

Sketches

(Click on a sketch to view it at full size)

Related Information

This page contains much of the information used by the City of Cambridge to assess properties. The purpose of this information is to be used only for ad valorem taxation purposes and any other use is therefore not valid.

Page was last modified on 3/8/2021 6:22 PM
Contact Us

How can we help?

Please provide as much detail below as possible so City staff can respond to your inquiry:

As a governmental entity, the Massachusetts Public Records Law applies to records made or received by the City. Any information received through use of this site is subject to the same provisions as information provided on paper.

Read our complete privacy statement


Service Requests

Enter a service request via SeeClickFix for things like missed trash pickups, potholes, etc.