U.S. flag

An official website of the United States government

Official websites use .gov
A .gov website belongs to an official government organization in the United States.

Secure .gov websites use HTTPS
A lock ( ) or https:// means you’ve safely connected to the .gov website. Share sensitive information only on official, secure websites.

Photo of houses along Bigelow Street

Property Database

100 Broadway

Property Information

Property Class HOTEL
State Class Code 300
Zoning (Unofficial) MXD
Map/Lot 43-71
Land Area (sq. ft) 34,402

Property Value

Year of Assessment2026
Tax DistrictC2
Residential ExemptionNo
Building Value$35,508,300
Land Value$38,201,700
Assessed Value$73,710,000
Sale Price$98,991,934
Book/Page1564/56
Sale DateOctober 22, 2020
Previous Assessed Value$70,000,000

Owner Information

Owner(s)ODYSSEY PROPCO LLC
345 CALIFORNIA ST
SUITE 300
SAN FRANCISCO, CA 94104

Building Information

Commercial Building Number 1, Section 1

Exterior
StyleHOTEL
Occupancy HOTEL
Number of Stories15
Exterior Wall Type BRICK
Roof Material RUBBER-MEMBRAN
Wall Height 12
Partititions GOOD
Interior
Living Area (sq. ft.)192,980
Number of Units 1
Systems
Heat TypeHEAT-PUMP
Heat Fuel Electric
Plumbing GOOD
Condition & Grade
Year Built1998
Overall ConditionAverage
Overall GradeGood
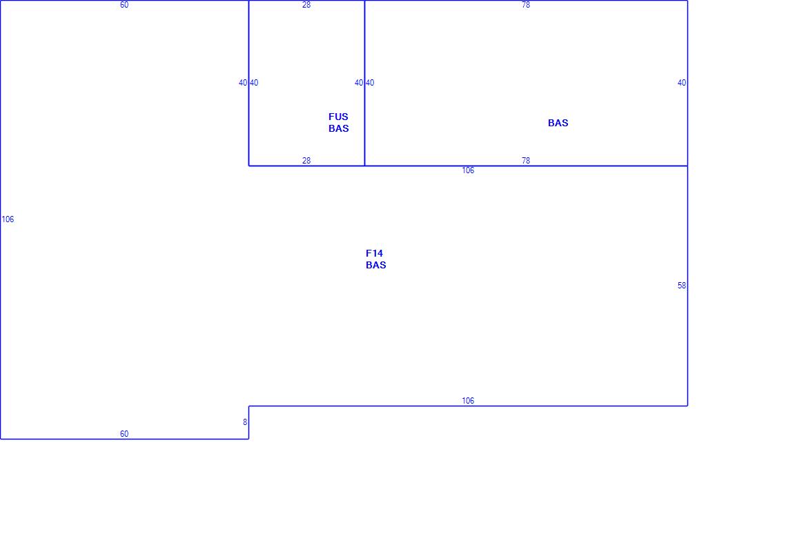
Subareas
Code Description Gross Area Living Area
BAS First Floor 16,748 16,748
F14 Upper Finish 14 Stry 12,508 175,112
FUS Upper Story, Finished 1,120 1,120
Total: 30,376 192,980
Extra Features / Outbuildings
DescriptionELEV-PSNGR
Number of Units3.00
Unit TypeU
DescriptionCELL TOWER
Number of Units1.00
Unit TypeU

Photos

(Click on a photo to view it at full size)

Sketches

(Click on a sketch to view it at full size)

Related Information

This page contains much of the information used by the City of Cambridge to assess properties. The purpose of this information is to be used only for ad valorem taxation purposes and any other use is therefore not valid.

Page was last modified on 3/8/2021 6:22 PM
Contact Us

How can we help?

Please provide as much detail below as possible so City staff can respond to your inquiry:

As a governmental entity, the Massachusetts Public Records Law applies to records made or received by the City. Any information received through use of this site is subject to the same provisions as information provided on paper.

Read our complete privacy statement


Service Requests

Enter a service request via SeeClickFix for things like missed trash pickups, potholes, etc.