U.S. flag

An official website of the United States government

Official websites use .gov
A .gov website belongs to an official government organization in the United States.

Secure .gov websites use HTTPS
A lock ( ) or https:// means you’ve safely connected to the .gov website. Share sensitive information only on official, secure websites.

Photo of houses along Bigelow Street

Property Database

272 Sidney St

Property Information

Property Class MULTIUSE-RES
State Class Code 13
Zoning (Unofficial) C-1
Map/Lot 66-1
Land Area (sq. ft) 8,250

Property Value

Year of Assessment2026
Tax DistrictC3
Residential ExemptionNo
Building Value$501,100
Land Value$1,760,400
Assessed Value$2,261,500
Sale Price$10
Book/Page56372/557
Sale DateJanuary 28, 2011
Previous Assessed Value$2,525,600

Owner Information

Owner(s)SIDNEY STREET REALTY LLC,
89 SALTWIND DRIVE,
HANOVER, MA 02339

Building Information

Commercial Building Number 1, Section 1

Exterior
StyleSTORAGE-WHSE
Occupancy WAREHOUSE
Number of Stories1
Exterior Wall Type CONCR-BLOCK
Roof Material TAR-GRAVEL
Wall Height 14
Partititions AVERAGE
Interior
Living Area (sq. ft.)4,494
Number of Units 3
Systems
Heat TypeHOT-WATER
Heat Fuel Gas
Plumbing AVERAGE
Condition & Grade
Year Built1900
Overall ConditionFair
Overall GradeAverage
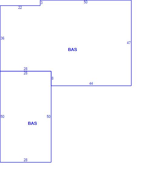
Subareas
Code Description Gross Area Living Area
BAS First Floor 4,494 4,494
Total: 4,494 4,494

Commercial Building Number 2, Section 1

Exterior
StyleMULT-RESDNCE
Occupancy MULTIUSE-RES
Number of Stories2.75
Exterior Wall Type WOOD-SHN-SHK
Roof Material ASPHALT-SHNG
Wall Height 10
Partititions AVERAGE
Interior
Living Area (sq. ft.)2,465
Number of Units 3
Systems
Heat TypeHOT-WATER
Heat Fuel Oil
Plumbing AVERAGE
Condition & Grade
Year Built1930
Overall ConditionAverage
Overall GradeAverage
Subareas
Code Description Gross Area Living Area
BAS First Floor 1,085 1,085
FHS Half Story, Finished 750 375
FUS Upper Story, Finished 1,005 1,005
UBM Basement 1,005 0
Total: 3,845 2,465

Photos

(Click on a photo to view it at full size)

Sketches

(Click on a sketch to view it at full size)

Related Information

This page contains much of the information used by the City of Cambridge to assess properties. The purpose of this information is to be used only for ad valorem taxation purposes and any other use is therefore not valid.

Page was last modified on 3/8/2021 6:22 PM
Contact Us

How can we help?

Please provide as much detail below as possible so City staff can respond to your inquiry:

As a governmental entity, the Massachusetts Public Records Law applies to records made or received by the City. Any information received through use of this site is subject to the same provisions as information provided on paper.

Read our complete privacy statement


Service Requests

Enter a service request via SeeClickFix for things like missed trash pickups, potholes, etc.