108 Harvard St
Property Information
| Property Class |
Housing Authority |
| State Class Code |
970 |
| Zoning (Unofficial) |
C-1 |
| Map/Lot |
73-124 |
| Land Area (sq. ft) |
362,381 |
Property Value
| Year of Assessment | 2026 |
| Tax District | C5 |
| Residential Exemption | No |
| Building Value | $71,004,800 |
| Land Value | $35,484,300 |
| Assessed Value | $106,489,100 |
| Sale Price | $0 |
| Book/Page | / |
| Sale Date | January 1, 1900 |
| Previous Assessed Value | $112,141,800 |
Owner Information
| Owner(s) | CAMBRIDGE HOUSING AUTHORITY 675 MASSACHUSETTS AVE CAMBRIDGE, MA 02139 |
Building Information
Commercial Building Number 1, Section 1
Exterior
| Style | APARTMENTS |
| Occupancy |
Housing Authority |
| Number of Stories | 3 |
| Exterior Wall Type |
BRICK |
| Roof Material |
TAR-GRAVEL |
| Wall Height |
10 |
| Partititions |
AVERAGE |
Interior
| Living Area (sq. ft.) | 17,788 |
| Number of Units |
0 |
Systems
| Heat Type | HOT-WATER |
| Heat Fuel |
|
| Plumbing |
AVERAGE |
Condition & Grade
| Year Built | 1940 |
| Overall Condition | Average |
| Overall Grade | Good |
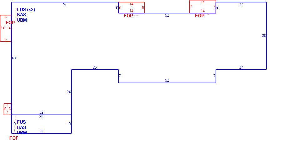
Subareas
| Code |
Description |
Gross Area |
Living Area |
| BAS |
First Floor |
6,036 |
6,036 |
| FOP |
Porch, Open |
310 |
0 |
| FUS |
Upper Story, Finished |
11,752 |
11,752 |
| UBM |
Basement |
6,036 |
0 |
| Total: |
24,134 |
17,788 |
Commercial Building Number 2, Section 1
Exterior
| Style | APARTMENTS |
| Occupancy |
Housing Authority |
| Number of Stories | 3 |
| Exterior Wall Type |
BRICK |
| Roof Material |
TAR-GRAVEL |
| Wall Height |
10 |
| Partititions |
AVERAGE |
Interior
| Living Area (sq. ft.) | 17,788 |
| Number of Units |
0 |
Systems
| Heat Type | HOT-WATER |
| Heat Fuel |
|
| Plumbing |
AVERAGE |
Condition & Grade
| Year Built | 1940 |
| Overall Condition | Average |
| Overall Grade | Good |
Subareas
| Code |
Description |
Gross Area |
Living Area |
| BAS |
First Floor |
6,036 |
6,036 |
| FOP |
Porch, Open |
282 |
0 |
| FUS |
Upper Story, Finished |
11,752 |
11,752 |
| UBM |
Basement |
6,036 |
0 |
| Total: |
24,106 |
17,788 |
Commercial Building Number 3, Section 1
Exterior
| Style | APARTMENTS |
| Occupancy |
Housing Authority |
| Number of Stories | 3 |
| Exterior Wall Type |
BRICK |
| Roof Material |
TAR-GRAVEL |
| Wall Height |
10 |
| Partititions |
AVERAGE |
Interior
| Living Area (sq. ft.) | 17,788 |
| Number of Units |
0 |
Systems
| Heat Type | HOT-WATER |
| Heat Fuel |
|
| Plumbing |
AVERAGE |
Condition & Grade
| Year Built | 1940 |
| Overall Condition | Average |
| Overall Grade | Good |
Subareas
| Code |
Description |
Gross Area |
Living Area |
| BAS |
First Floor |
6,036 |
6,036 |
| FOP |
Porch, Open |
310 |
0 |
| FUS |
Upper Story, Finished |
11,752 |
11,752 |
| UBM |
Basement |
6,036 |
0 |
| Total: |
24,134 |
17,788 |
Commercial Building Number 4, Section 1
Exterior
| Style | APARTMENTS |
| Occupancy |
Housing Authority |
| Number of Stories | 3 |
| Exterior Wall Type |
BRICK |
| Roof Material |
TAR-GRAVEL |
| Wall Height |
10 |
| Partititions |
AVERAGE |
Interior
| Living Area (sq. ft.) | 17,788 |
| Number of Units |
0 |
Systems
| Heat Type | HOT-WATER |
| Heat Fuel |
|
| Plumbing |
AVERAGE |
Condition & Grade
| Year Built | 1940 |
| Overall Condition | Average |
| Overall Grade | Good |
Subareas
| Code |
Description |
Gross Area |
Living Area |
| BAS |
First Floor |
6,036 |
6,036 |
| FOP |
Porch, Open |
282 |
0 |
| FUS |
Upper Story, Finished |
11,752 |
11,752 |
| UBM |
Basement |
6,036 |
0 |
| Total: |
24,106 |
17,788 |
Commercial Building Number 5, Section 1
Exterior
| Style | APARTMENTS |
| Occupancy |
Housing Authority |
| Number of Stories | 3 |
| Exterior Wall Type |
BRICK |
| Roof Material |
TAR-GRAVEL |
| Wall Height |
10 |
| Partititions |
AVERAGE |
Interior
| Living Area (sq. ft.) | 17,788 |
| Number of Units |
0 |
Systems
| Heat Type | HOT-WATER |
| Heat Fuel |
|
| Plumbing |
AVERAGE |
Condition & Grade
| Year Built | 1940 |
| Overall Condition | Average |
| Overall Grade | Good |
Subareas
| Code |
Description |
Gross Area |
Living Area |
| BAS |
First Floor |
6,036 |
6,036 |
| FOP |
Porch, Open |
290 |
0 |
| FUS |
Upper Story, Finished |
11,752 |
11,752 |
| UBM |
Basement |
6,036 |
0 |
| Total: |
24,114 |
17,788 |
Commercial Building Number 6, Section 1
Exterior
| Style | APARTMENTS |
| Occupancy |
Housing Authority |
| Number of Stories | 3 |
| Exterior Wall Type |
BRICK |
| Roof Material |
TAR-GRAVEL |
| Wall Height |
10 |
| Partititions |
AVERAGE |
Interior
| Living Area (sq. ft.) | 17,788 |
| Number of Units |
0 |
Systems
| Heat Type | HOT-WATER |
| Heat Fuel |
|
| Plumbing |
AVERAGE |
Condition & Grade
| Year Built | 1940 |
| Overall Condition | Average |
| Overall Grade | Good |
Subareas
| Code |
Description |
Gross Area |
Living Area |
| BAS |
First Floor |
6,036 |
6,036 |
| FOP |
Porch, Open |
276 |
0 |
| FUS |
Upper Story, Finished |
11,752 |
11,752 |
| UBM |
Basement |
6,036 |
0 |
| Total: |
24,100 |
17,788 |
Commercial Building Number 7, Section 1
Exterior
| Style | APARTMENTS |
| Occupancy |
Housing Authority |
| Number of Stories | 3 |
| Exterior Wall Type |
BRICK |
| Roof Material |
TAR-GRAVEL |
| Wall Height |
10 |
| Partititions |
AVERAGE |
Interior
| Living Area (sq. ft.) | 17,788 |
| Number of Units |
0 |
Systems
| Heat Type | HOT-WATER |
| Heat Fuel |
|
| Plumbing |
AVERAGE |
Condition & Grade
| Year Built | 1940 |
| Overall Condition | Average |
| Overall Grade | Good |
Subareas
| Code |
Description |
Gross Area |
Living Area |
| BAS |
First Floor |
6,036 |
6,036 |
| FOP |
Porch, Open |
360 |
0 |
| FUS |
Upper Story, Finished |
11,752 |
11,752 |
| UBM |
Basement |
6,036 |
0 |
| Total: |
24,184 |
17,788 |
Commercial Building Number 8, Section 1
Exterior
| Style | APARTMENTS |
| Occupancy |
Housing Authority |
| Number of Stories | 3 |
| Exterior Wall Type |
BRICK |
| Roof Material |
TAR-GRAVEL |
| Wall Height |
10 |
| Partititions |
AVERAGE |
Interior
| Living Area (sq. ft.) | 17,788 |
| Number of Units |
0 |
Systems
| Heat Type | HOT-WATER |
| Heat Fuel |
|
| Plumbing |
AVERAGE |
Condition & Grade
| Year Built | 1940 |
| Overall Condition | Average |
| Overall Grade | Good |
Subareas
| Code |
Description |
Gross Area |
Living Area |
| BAS |
First Floor |
6,036 |
6,036 |
| FOP |
Porch, Open |
276 |
0 |
| FUS |
Upper Story, Finished |
11,752 |
11,752 |
| UBM |
Basement |
6,036 |
0 |
| Total: |
24,100 |
17,788 |
Commercial Building Number 9, Section 1
Exterior
| Style | APARTMENTS |
| Occupancy |
Housing Authority |
| Number of Stories | 3 |
| Exterior Wall Type |
BRICK |
| Roof Material |
TAR-GRAVEL |
| Wall Height |
10 |
| Partititions |
AVERAGE |
Interior
| Living Area (sq. ft.) | 17,788 |
| Number of Units |
0 |
Systems
| Heat Type | HOT-WATER |
| Heat Fuel |
|
| Plumbing |
AVERAGE |
Condition & Grade
| Year Built | 1940 |
| Overall Condition | Average |
| Overall Grade | Good |
Subareas
| Code |
Description |
Gross Area |
Living Area |
| BAS |
First Floor |
6,036 |
6,036 |
| FOP |
Porch, Open |
276 |
0 |
| FUS |
Upper Story, Finished |
11,752 |
11,752 |
| UBM |
Basement |
6,036 |
0 |
| Total: |
24,100 |
17,788 |
Commercial Building Number 10, Section 1
Exterior
| Style | APARTMENTS |
| Occupancy |
Housing Authority |
| Number of Stories | 3 |
| Exterior Wall Type |
BRICK |
| Roof Material |
TAR-GRAVEL |
| Wall Height |
10 |
| Partititions |
AVERAGE |
Interior
| Living Area (sq. ft.) | 17,788 |
| Number of Units |
0 |
Systems
| Heat Type | HOT-WATER |
| Heat Fuel |
|
| Plumbing |
AVERAGE |
Condition & Grade
| Year Built | 1940 |
| Overall Condition | Average |
| Overall Grade | Good |
Subareas
| Code |
Description |
Gross Area |
Living Area |
| BAS |
First Floor |
6,036 |
6,036 |
| FOP |
Porch, Open |
276 |
0 |
| FUS |
Upper Story, Finished |
11,752 |
11,752 |
| UBM |
Basement |
6,036 |
0 |
| Total: |
24,100 |
17,788 |
Commercial Building Number 11, Section 1
Exterior
| Style | APARTMENTS |
| Occupancy |
Housing Authority |
| Number of Stories | 3 |
| Exterior Wall Type |
BRICK |
| Roof Material |
TAR-GRAVEL |
| Wall Height |
10 |
| Partititions |
AVERAGE |
Interior
| Living Area (sq. ft.) | 17,788 |
| Number of Units |
0 |
Systems
| Heat Type | HOT-WATER |
| Heat Fuel |
|
| Plumbing |
AVERAGE |
Condition & Grade
| Year Built | 1940 |
| Overall Condition | Average |
| Overall Grade | Good |
Subareas
| Code |
Description |
Gross Area |
Living Area |
| BAS |
First Floor |
6,036 |
6,036 |
| FOP |
Porch, Open |
276 |
0 |
| FUS |
Upper Story, Finished |
11,752 |
11,752 |
| UBM |
Basement |
6,036 |
0 |
| Total: |
24,100 |
17,788 |
Commercial Building Number 12, Section 1
Exterior
| Style | APARTMENTS |
| Occupancy |
Housing Authority |
| Number of Stories | 3 |
| Exterior Wall Type |
BRICK |
| Roof Material |
TAR-GRAVEL |
| Wall Height |
10 |
| Partititions |
AVERAGE |
Interior
| Living Area (sq. ft.) | 17,788 |
| Number of Units |
0 |
Systems
| Heat Type | HOT-WATER |
| Heat Fuel |
|
| Plumbing |
AVERAGE |
Condition & Grade
| Year Built | 1940 |
| Overall Condition | Average |
| Overall Grade | Good |
Subareas
| Code |
Description |
Gross Area |
Living Area |
| BAS |
First Floor |
6,036 |
6,036 |
| FOP |
Porch, Open |
270 |
0 |
| FUS |
Upper Story, Finished |
11,752 |
11,752 |
| UBM |
Basement |
6,036 |
0 |
| Total: |
24,094 |
17,788 |
Commercial Building Number 13, Section 1
Exterior
| Style | APARTMENTS |
| Occupancy |
Housing Authority |
| Number of Stories | 3 |
| Exterior Wall Type |
BRICK |
| Roof Material |
TAR-GRAVEL |
| Wall Height |
10 |
| Partititions |
AVERAGE |
Interior
| Living Area (sq. ft.) | 17,788 |
| Number of Units |
0 |
Systems
| Heat Type | HOT-WATER |
| Heat Fuel |
|
| Plumbing |
AVERAGE |
Condition & Grade
| Year Built | 1940 |
| Overall Condition | Average |
| Overall Grade | Good |
Subareas
| Code |
Description |
Gross Area |
Living Area |
| BAS |
First Floor |
6,036 |
6,036 |
| FOP |
Porch, Open |
282 |
0 |
| FUS |
Upper Story, Finished |
11,752 |
11,752 |
| UBM |
Basement |
6,036 |
0 |
| Total: |
24,106 |
17,788 |
Commercial Building Number 14, Section 1
Exterior
| Style | APARTMENTS |
| Occupancy |
Housing Authority |
| Number of Stories | 3 |
| Exterior Wall Type |
BRICK |
| Roof Material |
TAR-GRAVEL |
| Wall Height |
10 |
| Partititions |
AVERAGE |
Interior
| Living Area (sq. ft.) | 17,788 |
| Number of Units |
0 |
Systems
| Heat Type | HOT-WATER |
| Heat Fuel |
|
| Plumbing |
AVERAGE |
Condition & Grade
| Year Built | 1940 |
| Overall Condition | Average |
| Overall Grade | Good |
Subareas
| Code |
Description |
Gross Area |
Living Area |
| BAS |
First Floor |
6,036 |
6,036 |
| FOP |
Porch, Open |
276 |
0 |
| FUS |
Upper Story, Finished |
11,752 |
11,752 |
| UBM |
Basement |
6,036 |
0 |
| Total: |
24,100 |
17,788 |
Commercial Building Number 15, Section 1
Exterior
| Style | PARKG-STRUCT |
| Occupancy |
Housing Authority |
| Number of Stories | 1 |
| Exterior Wall Type |
BRICK |
| Roof Material |
TAR-GRAVEL |
| Wall Height |
10 |
| Partititions |
AVERAGE |
Interior
| Living Area (sq. ft.) | 5,790 |
| Number of Units |
0 |
Systems
| Heat Type | HOT-WATER |
| Heat Fuel |
|
| Plumbing |
AVERAGE |
Condition & Grade
| Year Built | 1940 |
| Overall Condition | Average |
| Overall Grade | Good |
Subareas
| Code |
Description |
Gross Area |
Living Area |
| BAS |
First Floor |
5,790 |
5,790 |
| Total: |
5,790 |
5,790 |
Commercial Building Number 16, Section 1
Exterior
| Style | APARTMENTS |
| Occupancy |
Housing Authority |
| Number of Stories | 3 |
| Exterior Wall Type |
BRICK |
| Roof Material |
TAR-GRAVEL |
| Wall Height |
10 |
| Partititions |
AVERAGE |
Interior
| Living Area (sq. ft.) | 17,788 |
| Number of Units |
0 |
Systems
| Heat Type | HOT-WATER |
| Heat Fuel |
|
| Plumbing |
AVERAGE |
Condition & Grade
| Year Built | 1940 |
| Overall Condition | Average |
| Overall Grade | Good |
Subareas
| Code |
Description |
Gross Area |
Living Area |
| BAS |
First Floor |
6,036 |
6,036 |
| FOP |
Porch, Open |
270 |
0 |
| FUS |
Upper Story, Finished |
11,752 |
11,752 |
| UBM |
Basement |
6,036 |
0 |
| Total: |
24,094 |
17,788 |
Commercial Building Number 17, Section 1
Exterior
| Style | MUN. GOVT BLDG |
| Occupancy |
Housing Authority |
| Number of Stories | 1 |
| Exterior Wall Type |
BRICK |
| Roof Material |
TAR-GRAVEL |
| Wall Height |
10 |
| Partititions |
AVERAGE |
Interior
| Living Area (sq. ft.) | 3,445 |
| Number of Units |
0 |
Systems
| Heat Type | HOT-WATER |
| Heat Fuel |
|
| Plumbing |
AVERAGE |
Condition & Grade
| Year Built | 1940 |
| Overall Condition | Average |
| Overall Grade | Good |
Subareas
| Code |
Description |
Gross Area |
Living Area |
| BAS |
First Floor |
3,445 |
3,445 |
| Total: |
3,445 |
3,445 |