U.S. flag

An official website of the United States government

Official websites use .gov
A .gov website belongs to an official government organization in the United States.

Secure .gov websites use HTTPS
A lock ( ) or https:// means you’ve safely connected to the .gov website. Share sensitive information only on official, secure websites.

Photo of houses along Bigelow Street

Property Database

119 Windsor St

Property Information

Property Class Improved City
State Class Code 931
Zoning (Unofficial) C-1
Map/Lot 74-127
Land Area (sq. ft) 40,770

Property Value

Year of Assessment2026
Tax DistrictC5
Residential ExemptionNo
Building Value$14,583,800
Land Value$5,771,700
Assessed Value$20,355,500
Sale Price$2,690,000
Book/Page1153/193
Sale DateApril 12, 1996
Previous Assessed Value$21,834,500

Owner Information

Owner(s)CITY OF CAMBRIDGE
C/O CAMBRIDGE HOSPITAL
1493 CAMBRIDGE ST.
CAMBRIDGE, MA 02139

Building Information

Commercial Building Number 1, Section 1

Exterior
StyleMEDICAL-OFC
Occupancy Improved City
Number of Stories2
Exterior Wall Type BRICK
Roof Material TAR-GRAVEL
Wall Height 12
Partititions AVERAGE
Interior
Living Area (sq. ft.)63,023
Number of Units 0
Systems
Heat TypeHOT/CHLD-WTR
Heat Fuel Gas
Plumbing AVERAGE
Condition & Grade
Year Built1920
Overall ConditionGood
Overall GradeGood
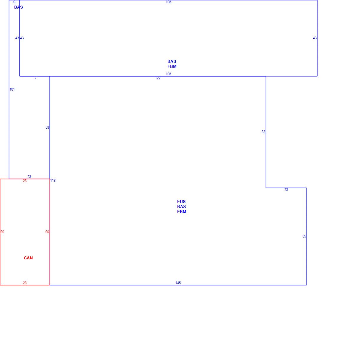
Subareas
Code Description Gross Area Living Area
BAS First Floor 24,477 24,477
CAN Canopy 1,680 0
FBM Basement, Finished 22,885 22,885
FUS Upper Story, Finished 15,661 15,661
Total: 64,703 63,023
Extra Features / Outbuildings
DescriptionELEV-FREIGHT
Number of Units1.00
Unit TypeU

Photos

(Click on a photo to view it at full size)

Sketches

(Click on a sketch to view it at full size)

Related Information

This page contains much of the information used by the City of Cambridge to assess properties. The purpose of this information is to be used only for ad valorem taxation purposes and any other use is therefore not valid.

Page was last modified on 3/8/2021 6:22 PM
Contact Us

How can we help?

Please provide as much detail below as possible so City staff can respond to your inquiry:

As a governmental entity, the Massachusetts Public Records Law applies to records made or received by the City. Any information received through use of this site is subject to the same provisions as information provided on paper.

Read our complete privacy statement


Service Requests

Enter a service request via SeeClickFix for things like missed trash pickups, potholes, etc.