U.S. flag

An official website of the United States government

Official websites use .gov
A .gov website belongs to an official government organization in the United States.

Secure .gov websites use HTTPS
A lock ( ) or https:// means you’ve safely connected to the .gov website. Share sensitive information only on official, secure websites.

Photo of houses along Bigelow Street

Property Database

97 Pine St

Property Information

Property Class AFFORDABLE APT
State Class Code 114
Zoning (Unofficial) C-1
Map/Lot 75-39
Land Area (sq. ft) 7,030

Property Value

Year of Assessment2026
Tax DistrictC5
Residential ExemptionNo
Building Value$1,499,500
Land Value$880,100
Assessed Value$2,379,600
Sale Price$1,550,000
Book/Page52122/151
Sale DateJanuary 23, 2009
Previous Assessed Value$2,287,100

Owner Information

Owner(s)CAMBRIDGE COMMUNITY HOUSING DEV., INC
810 MEMORIAL DR.
SUITE 102
CAMBRIDGE, MA 02139

Building Information

Commercial Building Number 1, Section 1

Exterior
StyleAPARTMENTS
Occupancy >8-UNIT-APT
Number of Stories3
Exterior Wall Type ALUMNM-VINYL
Roof Material TAR-GRAVEL
Wall Height 11
Partititions EXCELLENT
Interior
Living Area (sq. ft.)11,748
Number of Units 12
Systems
Heat TypeHOT-WATER
Heat Fuel Gas
Plumbing EXCELLENT
Condition & Grade
Year Built1900
Overall ConditionAverage
Overall GradeGood
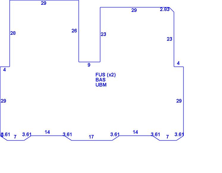
Subareas
Code Description Gross Area Living Area
BAS First Floor 3,916 3,916
FUS Upper Story, Finished 7,832 7,832
UBM Basement 3,916 0
Total: 15,664 11,748

Photos

(Click on a photo to view it at full size)

Sketches

(Click on a sketch to view it at full size)

Related Information

This page contains much of the information used by the City of Cambridge to assess properties. The purpose of this information is to be used only for ad valorem taxation purposes and any other use is therefore not valid.

Page was last modified on 3/8/2021 6:22 PM
Contact Us

How can we help?

Please provide as much detail below as possible so City staff can respond to your inquiry:

As a governmental entity, the Massachusetts Public Records Law applies to records made or received by the City. Any information received through use of this site is subject to the same provisions as information provided on paper.

Read our complete privacy statement


Service Requests

Enter a service request via SeeClickFix for things like missed trash pickups, potholes, etc.