U.S. flag

An official website of the United States government

Official websites use .gov
A .gov website belongs to an official government organization in the United States.

Secure .gov websites use HTTPS
A lock ( ) or https:// means you’ve safely connected to the .gov website. Share sensitive information only on official, secure websites.

Photo of houses along Bigelow Street

Property Database

243 Columbia St

Property Information

Property Class >8-UNIT-APT
State Class Code 112
Zoning (Unofficial) C-1
Map/Lot 86-64
Land Area (sq. ft) 4,112

Property Value

Year of Assessment2026
Tax DistrictC6
Residential ExemptionNo
Building Value$1,902,800
Land Value$1,320,100
Assessed Value$3,222,900
Sale Price$0
Book/Page15745/534
Sale DateAugust 21, 1984
Previous Assessed Value$3,246,200

Owner Information

Owner(s)ROTHMAN, GEORGE & ETHEL ROTHMAN, TRS.
C/O FIRST CAMBRIDGE REALTY CORP.
907 MASS AVE
CAMBRIDGE, MA 02139

Building Information

Commercial Building Number 1, Section 1

Exterior
StyleMULT-RESDNCE
Occupancy >8-UNIT-APT
Number of Stories3
Exterior Wall Type WOOD-SHN-SHK
Roof Material TAR-GRAVEL
Wall Height 10
Partititions AVERAGE
Interior
Living Area (sq. ft.)8,460
Number of Units 9
Systems
Heat TypeFORCED-AIR
Heat Fuel Gas
Plumbing AVERAGE
Condition & Grade
Year Built1900
Overall ConditionFair
Overall GradeFair
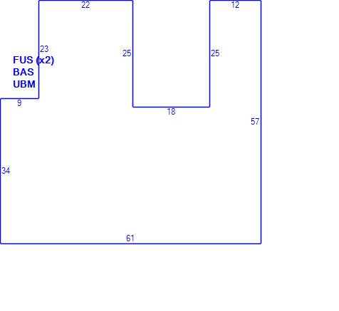
Subareas
Code Description Gross Area Living Area
BAS First Floor 2,820 2,820
FUS Upper Story, Finished 5,640 5,640
UBM Basement 2,820 0
Total: 11,280 8,460

Photos

(Click on a photo to view it at full size)

Sketches

(Click on a sketch to view it at full size)

Related Information

This page contains much of the information used by the City of Cambridge to assess properties. The purpose of this information is to be used only for ad valorem taxation purposes and any other use is therefore not valid.

Page was last modified on 3/8/2021 6:22 PM
Contact Us

How can we help?

Please provide as much detail below as possible so City staff can respond to your inquiry:

As a governmental entity, the Massachusetts Public Records Law applies to records made or received by the City. Any information received through use of this site is subject to the same provisions as information provided on paper.

Read our complete privacy statement


Service Requests

Enter a service request via SeeClickFix for things like missed trash pickups, potholes, etc.