U.S. flag

An official website of the United States government

Official websites use .gov
A .gov website belongs to an official government organization in the United States.

Secure .gov websites use HTTPS
A lock ( ) or https:// means you’ve safely connected to the .gov website. Share sensitive information only on official, secure websites.

Photo of houses along Bigelow Street

Property Database

201 Norfolk St

Property Information

Property Class TWO-FAM-RES
State Class Code 104
Zoning (Unofficial) C-1
Map/Lot 87-127
Land Area (sq. ft) 6,300

Property Value

Year of Assessment2026
Tax DistrictR2
Residential ExemptionYes
Building Value$2,262,300
Land Value$1,004,600
Assessed Value$3,266,900
Sale Price$1
Book/Page63026/459
Sale DateDecember 6, 2013
Previous Assessed Value$3,140,800

Owner Information

Owner(s)VALENTE, FRANCISCO & MARIA VALENTE &
CHRISTINA VALENTE PATTERSON, TRUSTEE
201 NORFOLK ST
CAMBRIDGE, MA 02139

Building Information

Residential Building Number 1, Section 1

Exterior
StyleOLD STYLE TWO FAM
Occupancy TWO-FAM-RES
Number of Stories3
Exterior Wall Type Frame-Clapbrd
Roof Type Flat
Roof Material Rubber Membrai
Interior
Living Area (sq. ft.)4,808
Number of Units 2
Total Rooms 13
Bedrooms 6
Kitchens 2
Full Baths 5
Half Baths 0
Fireplaces 0
Systems
Heat TypeHot Water
Heat Fuel Gas
Central A/C Yes
Condition & Grade
Year Built1839
Interior Condition Excellent
Overall ConditionExcellent
Overall GradeAverage
Parking
Open Parking4
Covered Parking0
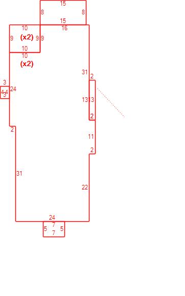
Subareas
Code Description Gross Area Living Area
BAS First Floor 1,560 1,560
DKW Deck Wood 132 0
FOP Porch, Open 245 0
FUS Upper Story, Finished 3,248 3,248
UBM Basement 1,560 0
UST Utility, Storage, Unfinished 120 0
Total: 6,865 4,808

Photos

(Click on a photo to view it at full size)

Sketches

(Click on a sketch to view it at full size)

Related Information

This page contains much of the information used by the City of Cambridge to assess properties. The purpose of this information is to be used only for ad valorem taxation purposes and any other use is therefore not valid.

Page was last modified on 3/8/2021 6:22 PM
Contact Us

How can we help?

Please provide as much detail below as possible so City staff can respond to your inquiry:

As a governmental entity, the Massachusetts Public Records Law applies to records made or received by the City. Any information received through use of this site is subject to the same provisions as information provided on paper.

Read our complete privacy statement


Service Requests

Enter a service request via SeeClickFix for things like missed trash pickups, potholes, etc.