U.S. flag

An official website of the United States government

Official websites use .gov
A .gov website belongs to an official government organization in the United States.

Secure .gov websites use HTTPS
A lock ( ) or https:// means you’ve safely connected to the .gov website. Share sensitive information only on official, secure websites.

Photo of houses along Bigelow Street

Property Database

380 Massachusetts Ave

Property Information

Property Class Improved Public Safety
State Class Code 935
Zoning (Unofficial) BB-CSQ
Map/Lot 92-57
Land Area (sq. ft) 10,000

Property Value

Year of Assessment2026
Tax DistrictC5
Residential ExemptionNo
Building Value$3,298,100
Land Value$1,295,400
Assessed Value$4,593,500
Sale Price$0
Book/Page/
Sale DateJanuary 1, 1900
Previous Assessed Value$4,915,100

Owner Information

Owner(s)CAMBRIDGE CITY OF
FIRE DEPT
491 BROADWAY
CAMBRIDGE, MA 02138

Building Information

Commercial Building Number 1, Section 1

Exterior
StyleFIREHOUSE
Occupancy Improved Public Safety
Number of Stories2.5
Exterior Wall Type BRICK
Roof Material SLATE-CLAY
Wall Height 15
Partititions AVERAGE
Interior
Living Area (sq. ft.)10,553
Number of Units 1
Systems
Heat TypeHOT-WATER
Heat Fuel Gas
Plumbing AVERAGE
Condition & Grade
Year Built1890
Overall ConditionGood
Overall GradeVery-good
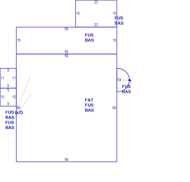
Subareas
Code Description Gross Area Living Area
BAS First Floor 4,807 4,807
FAT Finished Attic 3,360 840
FUS Upper Story, Finished 4,906 4,906
Total: 13,073 10,553

Photos

(Click on a photo to view it at full size)

Sketches

(Click on a sketch to view it at full size)

Related Information

This page contains much of the information used by the City of Cambridge to assess properties. The purpose of this information is to be used only for ad valorem taxation purposes and any other use is therefore not valid.

Page was last modified on 3/8/2021 6:22 PM
Contact Us

How can we help?

Please provide as much detail below as possible so City staff can respond to your inquiry:

As a governmental entity, the Massachusetts Public Records Law applies to records made or received by the City. Any information received through use of this site is subject to the same provisions as information provided on paper.

Read our complete privacy statement


Service Requests

Enter a service request via SeeClickFix for things like missed trash pickups, potholes, etc.