U.S. flag

An official website of the United States government

Official websites use .gov
A .gov website belongs to an official government organization in the United States.

Secure .gov websites use HTTPS
A lock ( ) or https:// means you’ve safely connected to the .gov website. Share sensitive information only on official, secure websites.

Photo of houses along Bigelow Street

Property Database

27 Decatur St

Property Information

Property Class TWO-FAM-RES
State Class Code 104
Zoning (Unofficial) C
Map/Lot 94-65
Land Area (sq. ft) 2,720

Property Value

Year of Assessment2026
Tax DistrictR13
Residential ExemptionYes
Building Value$661,000
Land Value$899,300
Assessed Value$1,560,300
Sale Price$525,000
Book/Page1377/17
Sale DateNovember 12, 2009
Previous Assessed Value$1,537,200

Owner Information

Owner(s)MITCHELL, JOHN L. JR. &
NIKKI FARIA-MITCHELL
27 DECATUR ST
CAMBRIDGE, MA 02139

Building Information

Residential Building Number 1, Section 1

Exterior
StyleOLD STYLE TWO FAM
Occupancy TWO-FAM-RES
Number of Stories2.25
Exterior Wall Type Frame-Clapbrd
Roof Type Gable
Roof Material Aspahlt Shingl
Interior
Living Area (sq. ft.)1,283
Number of Units 2
Total Rooms 7
Bedrooms 4
Kitchens 2
Full Baths 3
Half Baths 0
Fireplaces 0
Systems
Heat TypeHot Water
Heat Fuel Gas
Central A/C No
Condition & Grade
Year Built1873
Interior Condition Excellent
Overall ConditionExcellent
Overall GradeFair
Parking
Open Parking2
Covered Parking0
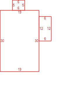
Subareas
Code Description Gross Area Living Area
BAS First Floor 570 570
DKW Deck Wood 72 0
FAT Finished Attic 570 143
FBM Basement, Finished 570 0
FEP Porch, Enclosed 30 0
FUS Upper Story, Finished 570 570
Total: 2,382 1,283

Photos

(Click on a photo to view it at full size)

Sketches

(Click on a sketch to view it at full size)

Related Information

This page contains much of the information used by the City of Cambridge to assess properties. The purpose of this information is to be used only for ad valorem taxation purposes and any other use is therefore not valid.

Page was last modified on 3/8/2021 6:22 PM
Contact Us

How can we help?

Please provide as much detail below as possible so City staff can respond to your inquiry:

As a governmental entity, the Massachusetts Public Records Law applies to records made or received by the City. Any information received through use of this site is subject to the same provisions as information provided on paper.

Read our complete privacy statement


Service Requests

Enter a service request via SeeClickFix for things like missed trash pickups, potholes, etc.