U.S. flag

An official website of the United States government

Official websites use .gov
A .gov website belongs to an official government organization in the United States.

Secure .gov websites use HTTPS
A lock ( ) or https:// means you’ve safely connected to the .gov website. Share sensitive information only on official, secure websites.

Photo of houses along Bigelow Street

Property Database

26 Pleasant St

Property Information

Property Class AFFORDABLE APT
State Class Code 114
Zoning (Unofficial) C-1
Map/Lot 105-101
Land Area (sq. ft) 3,145

Property Value

Year of Assessment2026
Tax DistrictC5
Residential ExemptionNo
Building Value$421,400
Land Value$627,000
Assessed Value$1,048,400
Sale Price$800,000
Book/Page23186/63
Sale DateMay 14, 1993
Previous Assessed Value$1,007,400

Owner Information

Owner(s)CAMBRIDGE COMMUNITY PROPERTIES
LIMITED PARTNERSHIP
C/O WINN MANAGEMENT CO
810 MEMORIAL DR., SUITE 102
CAMBRIDGE, MA 02139

Building Information

Commercial Building Number 1, Section 1

Exterior
StyleMULT-RESDNCE
Occupancy 4-8-UNIT-APT
Number of Stories3
Exterior Wall Type WOOD-SHN-SHK
Roof Material TAR-GRAVEL
Wall Height 8
Partititions AVERAGE
Interior
Living Area (sq. ft.)7,134
Number of Units 6
Systems
Heat TypeHOT-WATER
Heat Fuel Gas
Plumbing GOOD
Condition & Grade
Year Built1903
Overall ConditionVery Good
Overall GradeGood
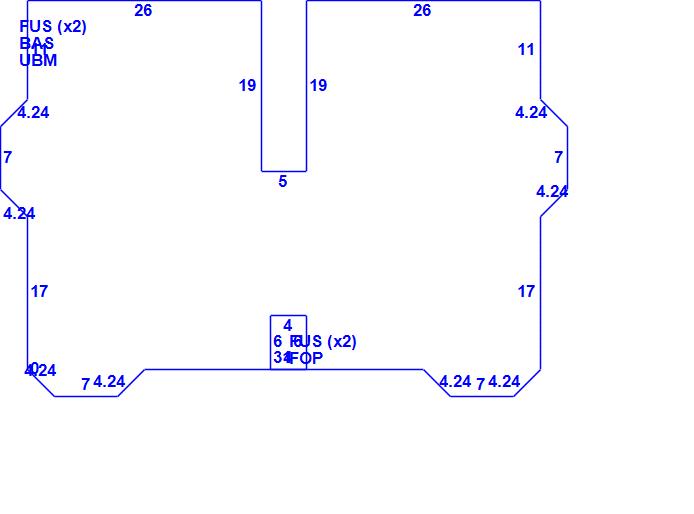
Subareas
Code Description Gross Area Living Area
BAS First Floor 2,362 2,362
FOP Porch, Open 24 0
FUS Upper Story, Finished 4,772 4,772
UBM Basement 2,362 0
Total: 9,520 7,134

Photos

(Click on a photo to view it at full size)

Sketches

(Click on a sketch to view it at full size)

Related Information

This page contains much of the information used by the City of Cambridge to assess properties. The purpose of this information is to be used only for ad valorem taxation purposes and any other use is therefore not valid.

Page was last modified on 3/8/2021 6:22 PM
Contact Us

How can we help?

Please provide as much detail below as possible so City staff can respond to your inquiry:

As a governmental entity, the Massachusetts Public Records Law applies to records made or received by the City. Any information received through use of this site is subject to the same provisions as information provided on paper.

Read our complete privacy statement


Service Requests

Enter a service request via SeeClickFix for things like missed trash pickups, potholes, etc.