U.S. flag

An official website of the United States government

Official websites use .gov
A .gov website belongs to an official government organization in the United States.

Secure .gov websites use HTTPS
A lock ( ) or https:// means you’ve safely connected to the .gov website. Share sensitive information only on official, secure websites.

Photo of houses along Bigelow Street

Property Database

55 River St

Property Information

Property Class THREE-FM-RES
State Class Code 105
Zoning (Unofficial) C-1
Map/Lot 105-139
Land Area (sq. ft) 2,696

Property Value

Year of Assessment2026
Tax DistrictR12
Residential ExemptionYes
Building Value$1,634,900
Land Value$542,000
Assessed Value$2,176,900
Sale Price$1
Book/Page55426/244
Sale DateSeptember 22, 2010
Previous Assessed Value$2,073,200

Owner Information

Owner(s)ARIAS, LUIS M. & ANA ARIAS
57 RIVER ST
CAMBRIDGE, MA 02139-3803

Building Information

Residential Building Number 1, Section 1

Exterior
StyleDECKER
Occupancy THREE-FM-RES
Number of Stories3
Exterior Wall Type Aluminum-Vinyl
Roof Type Flat
Roof Material Tar Gravel
Interior
Living Area (sq. ft.)5,400
Number of Units 3
Total Rooms 15
Bedrooms 9
Kitchens 3
Full Baths 3
Half Baths 0
Fireplaces 0
Systems
Heat TypeHot Water
Heat Fuel Gas
Central A/C No
Condition & Grade
Year Built1910
Interior Condition Very Good
Overall ConditionVery Good
Overall GradeFair
Parking
Open Parking0
Covered Parking0
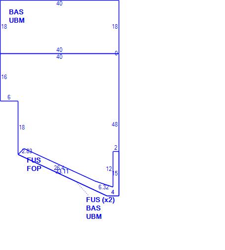
Subareas
Code Description Gross Area Living Area
BAS First Floor 2,238 2,238
FOP Porch, Open 126 0
FUS Upper Story, Finished 3,162 3,162
UBM Basement 2,238 0
Total: 7,764 5,400

Photos

(Click on a photo to view it at full size)

Sketches

(Click on a sketch to view it at full size)

Related Information

This page contains much of the information used by the City of Cambridge to assess properties. The purpose of this information is to be used only for ad valorem taxation purposes and any other use is therefore not valid.

Page was last modified on 3/8/2021 6:22 PM
Contact Us

How can we help?

Please provide as much detail below as possible so City staff can respond to your inquiry:

As a governmental entity, the Massachusetts Public Records Law applies to records made or received by the City. Any information received through use of this site is subject to the same provisions as information provided on paper.

Read our complete privacy statement


Service Requests

Enter a service request via SeeClickFix for things like missed trash pickups, potholes, etc.