U.S. flag

An official website of the United States government

Official websites use .gov
A .gov website belongs to an official government organization in the United States.

Secure .gov websites use HTTPS
A lock ( ) or https:// means you’ve safely connected to the .gov website. Share sensitive information only on official, secure websites.

Photo of houses along Bigelow Street

Property Database

149 First St

Property Information

Property Class EATING-ESTBL
State Class Code 326
Zoning (Unofficial) PUD-4B-BA
Map/Lot 16-11
Land Area (sq. ft) 10,000

Property Value

Year of Assessment2026
Tax DistrictC1
Residential ExemptionNo
Building Value$566,800
Land Value$1,982,400
Assessed Value$2,549,200
Sale Price$1
Book/Page82976/110
Sale DateJuly 8, 2024
Previous Assessed Value$2,771,900

Owner Information

Owner(s)DANBERG, DAVID A.
6 RAWSON RD
BROOKLINE, MA 02445

Building Information

Commercial Building Number 1, Section 1

Exterior
StyleRESTAURANT
Occupancy EATING-ESTBL
Number of Stories1.5
Exterior Wall Type STUCCO
Roof Material OTHER
Wall Height 15
Partititions AVERAGE
Interior
Living Area (sq. ft.)4,625
Number of Units 1
Systems
Heat TypeHOT-WATER
Heat Fuel Gas
Plumbing AVERAGE
Condition & Grade
Year Built1986
Overall ConditionAverage
Overall GradeAverage
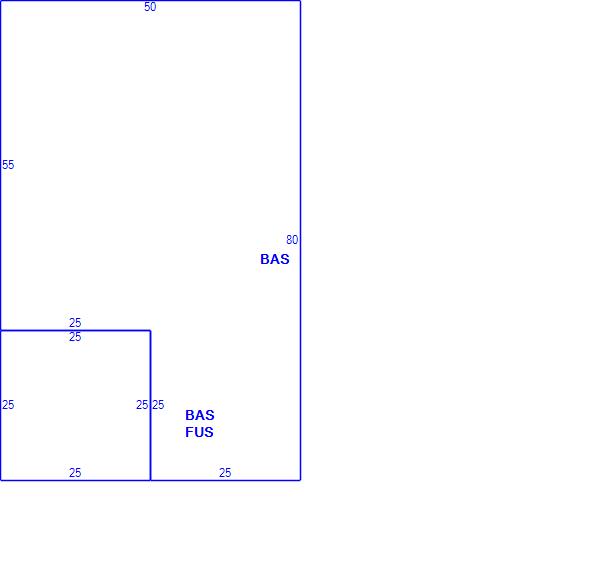
Subareas
Code Description Gross Area Living Area
BAS First Floor 4,000 4,000
FUS Upper Story, Finished 625 625
Total: 4,625 4,625

Commercial Building Number 2, Section 1

Exterior
StyleRESTAURANT
Occupancy EATING-ESTBL
Number of Stories1
Exterior Wall Type CONCR-BLOCK
Roof Material TAR-GRAVEL
Wall Height 15
Partititions GOOD
Interior
Living Area (sq. ft.)4,000
Number of Units 1
Systems
Heat TypeHOT-WATER
Heat Fuel Electric
Plumbing GOOD
Condition & Grade
Year Built1985
Overall ConditionGood
Overall GradeAverage
Subareas
Code Description Gross Area Living Area
BAS First Floor 3,900 3,900
FOP Porch, Open 100 0
FUS Upper Story, Finished 100 100
Total: 4,100 4,000

Photos

(Click on a photo to view it at full size)

Sketches

(Click on a sketch to view it at full size)

Related Information

This page contains much of the information used by the City of Cambridge to assess properties. The purpose of this information is to be used only for ad valorem taxation purposes and any other use is therefore not valid.

Page was last modified on 3/8/2021 6:22 PM
Contact Us

How can we help?

Please provide as much detail below as possible so City staff can respond to your inquiry:

As a governmental entity, the Massachusetts Public Records Law applies to records made or received by the City. Any information received through use of this site is subject to the same provisions as information provided on paper.

Read our complete privacy statement


Service Requests

Enter a service request via SeeClickFix for things like missed trash pickups, potholes, etc.