U.S. flag

An official website of the United States government

Official websites use .gov
A .gov website belongs to an official government organization in the United States.

Secure .gov websites use HTTPS
A lock ( ) or https:// means you’ve safely connected to the .gov website. Share sensitive information only on official, secure websites.

Photo of houses along Bigelow Street

Property Database

200 Hampshire St

Property Information

Property Class MULT-RES-2FAM
State Class Code 1094
Zoning (Unofficial) BA
Map/Lot 110-19
Land Area (sq. ft) 6,446

Property Value

Year of Assessment2026
Tax DistrictR3
Residential ExemptionNo
Building Value$1,515,500
Land Value$1,420,200
Assessed Value$2,935,700
Sale Price$0
Book/Page61027/333
Sale DateJanuary 23, 2013
Previous Assessed Value$2,662,800

Owner Information

Owner(s)PAVAO, NELSON V. & PAULINE P. PAQUETTE
50 GOSS AVE.
MELROSE, MA 02176

Building Information

Residential Building Number 1, Section 1

Exterior
StyleCONVENTIONAL
Occupancy MULT-RES-2FAM
Number of Stories2.5
Exterior Wall Type Aluminum-Vinyl
Roof Type Gable
Roof Material Aspahlt Shingl
Interior
Living Area (sq. ft.)1,750
Number of Units 2
Total Rooms 12
Bedrooms 5
Kitchens 2
Full Baths 2
Half Baths 0
Fireplaces 0
Systems
Heat TypeOther
Heat Fuel Gas
Central A/C No
Condition & Grade
Year Built1930
Interior Condition Average
Overall ConditionAverage
Overall GradeFair
Parking
Open Parking0
Covered Parking0
Subareas
Code Description Gross Area Living Area
BAS First Floor 875 875
FOP Porch, Open 276 0
FUS Upper Story, Finished 875 875
UBM Basement 875 0
Total: 2,901 1,750

Residential Building Number 2, Section 1

Exterior
StyleCONVENTIONAL
Occupancy MULT-RES-3FAM
Number of Stories3
Exterior Wall Type Aluminum-Vinyl
Roof Type Flat
Roof Material Rubber Membrai
Interior
Living Area (sq. ft.)3,910
Number of Units 3
Total Rooms 15
Bedrooms 6
Kitchens 3
Full Baths 3
Half Baths 1
Fireplaces 0
Systems
Heat TypeSpace Heat
Heat Fuel Gas
Central A/C No
Condition & Grade
Year Built1902
Interior Condition Good
Overall ConditionGood
Overall GradeAverage
Parking
Open Parking0
Covered Parking0
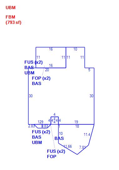
Subareas
Code Description Gross Area Living Area
BAS First Floor 1,562 1,562
FBM Basement, Finished 793 0
FOP Porch, Open 368 0
FUS Upper Story, Finished 2,348 2,348
UBM Basement 365 0
Total: 5,436 3,910

Photos

(Click on a photo to view it at full size)

Sketches

(Click on a sketch to view it at full size)

Related Information

This page contains much of the information used by the City of Cambridge to assess properties. The purpose of this information is to be used only for ad valorem taxation purposes and any other use is therefore not valid.

Page was last modified on 3/8/2021 6:22 PM
Contact Us

How can we help?

Please provide as much detail below as possible so City staff can respond to your inquiry:

As a governmental entity, the Massachusetts Public Records Law applies to records made or received by the City. Any information received through use of this site is subject to the same provisions as information provided on paper.

Read our complete privacy statement


Service Requests

Enter a service request via SeeClickFix for things like missed trash pickups, potholes, etc.