U.S. flag

An official website of the United States government

Official websites use .gov
A .gov website belongs to an official government organization in the United States.

Secure .gov websites use HTTPS
A lock ( ) or https:// means you’ve safely connected to the .gov website. Share sensitive information only on official, secure websites.

Photo of houses along Bigelow Street

Property Database

259 Prospect St

Property Information

Property Class PUB UTIL REG
State Class Code 424
Zoning (Unofficial) C-1
Map/Lot 110-61
Land Area (sq. ft) 32,575

Property Value

Year of Assessment2026
Tax DistrictC6
Residential ExemptionNo
Building Value$434,500
Land Value$2,931,800
Assessed Value$3,366,300
Sale Price$0
Book/Page10325/482
Sale DateAugust 1, 1963
Previous Assessed Value$4,017,800

Owner Information

Owner(s)CAMBRIDGE ELECTRIC LIGHT CO
PROPERTY TAX DEPT
P.O. BOX 270
HARTFORD, CT 06141-0270

Building Information

Commercial Building Number 1, Section 1

Exterior
StyleSTORAGE-WHSE
Occupancy WAREHOUSE
Number of Stories1
Exterior Wall Type CONCR-BLOCK
Roof Material TAR-GRAVEL
Wall Height 16
Partititions AVERAGE
Interior
Living Area (sq. ft.)6,860
Number of Units 1
Systems
Heat TypeSPACE-HEAT
Heat Fuel Electric
Plumbing AVERAGE
Condition & Grade
Year Built1964
Overall ConditionGood
Overall GradeAverage
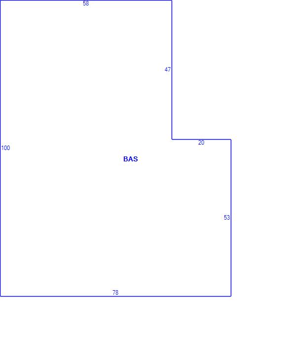
Subareas
Code Description Gross Area Living Area
BAS First Floor 6,860 6,860
Total: 6,860 6,860

Photos

(Click on a photo to view it at full size)

Sketches

(Click on a sketch to view it at full size)

Related Information

This page contains much of the information used by the City of Cambridge to assess properties. The purpose of this information is to be used only for ad valorem taxation purposes and any other use is therefore not valid.

Page was last modified on 3/8/2021 6:22 PM
Contact Us

How can we help?

Please provide as much detail below as possible so City staff can respond to your inquiry:

As a governmental entity, the Massachusetts Public Records Law applies to records made or received by the City. Any information received through use of this site is subject to the same provisions as information provided on paper.

Read our complete privacy statement


Service Requests

Enter a service request via SeeClickFix for things like missed trash pickups, potholes, etc.