U.S. flag

An official website of the United States government

Official websites use .gov
A .gov website belongs to an official government organization in the United States.

Secure .gov websites use HTTPS
A lock ( ) or https:// means you’ve safely connected to the .gov website. Share sensitive information only on official, secure websites.

Photo of houses along Bigelow Street

Property Database

1003 Massachusetts Ave

Property Information

Property Class RETAIL-STORE
State Class Code 325
Zoning (Unofficial) BB-2
Map/Lot 116-12
Land Area (sq. ft) 23,875

Property Value

Year of Assessment2026
Tax DistrictC5
Residential ExemptionNo
Building Value$4,811,400
Land Value$5,586,800
Assessed Value$10,398,200
Sale Price$3,655,000
Book/Page24080/331
Sale DateDecember 23, 1993
Previous Assessed Value$11,395,600

Owner Information

Owner(s)SIMON, RICHARD & WILLIAM C.KAPLAN,TRS. 997 MASS AVE NOMINEE TRST
C/O EASTPORT REAL ESTATE SERVICES
107 AUDUBON RD SUITE 2-301
WAKEFIELD, MA 01880

Building Information

Commercial Building Number 1, Section 1

Exterior
StyleRETAIL-STORE
Occupancy RETAIL-STORE
Number of Stories2
Exterior Wall Type STUCCO
Roof Material TAR-GRAVEL
Wall Height 12
Partititions AVERAGE
Interior
Living Area (sq. ft.)40,316
Number of Units 4
Systems
Heat TypeFORCED-AIR
Heat Fuel Gas
Plumbing AVERAGE
Condition & Grade
Year Built1960
Overall ConditionFair
Overall GradeGood
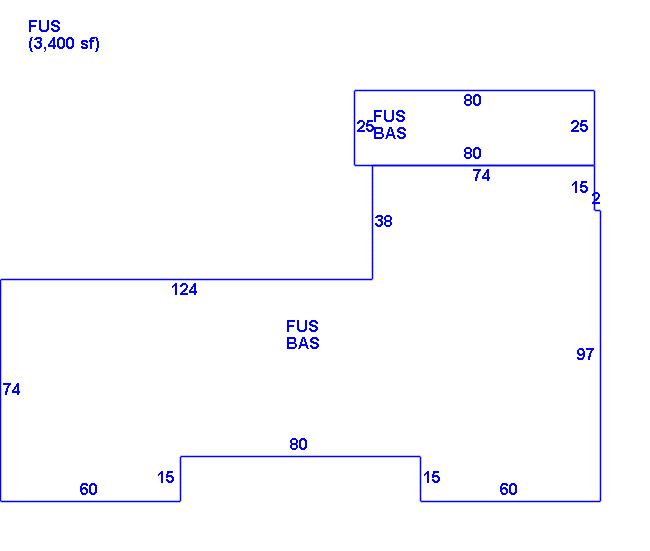
Subareas
Code Description Gross Area Living Area
BAS First Floor 18,458 18,458
FUS Upper Story, Finished 21,858 21,858
Total: 40,316 40,316
Extra Features / Outbuildings
DescriptionPAVING-ASPHT
Number of Units2000.00
Unit TypeSF

Photos

(Click on a photo to view it at full size)

Sketches

(Click on a sketch to view it at full size)

Related Information

This page contains much of the information used by the City of Cambridge to assess properties. The purpose of this information is to be used only for ad valorem taxation purposes and any other use is therefore not valid.

Page was last modified on 3/8/2021 6:22 PM
Contact Us

How can we help?

Please provide as much detail below as possible so City staff can respond to your inquiry:

As a governmental entity, the Massachusetts Public Records Law applies to records made or received by the City. Any information received through use of this site is subject to the same provisions as information provided on paper.

Read our complete privacy statement


Service Requests

Enter a service request via SeeClickFix for things like missed trash pickups, potholes, etc.