U.S. flag

An official website of the United States government

Official websites use .gov
A .gov website belongs to an official government organization in the United States.

Secure .gov websites use HTTPS
A lock ( ) or https:// means you’ve safely connected to the .gov website. Share sensitive information only on official, secure websites.

Photo of houses along Bigelow Street

Property Database

25 Lee St

Property Information

Property Class >8-UNIT-APT
State Class Code 112
Zoning (Unofficial) C-1
Map/Lot 117-103
Land Area (sq. ft) 18,463

Property Value

Year of Assessment2026
Tax DistrictC6
Residential ExemptionNo
Building Value$7,727,700
Land Value$5,427,200
Assessed Value$13,154,900
Sale Price$540,000
Book/Page13554/67
Sale DateOctober 3, 1978
Previous Assessed Value$13,251,000

Owner Information

Owner(s)LEE STREET REALTY, INC.
1259 BROADWAY
SOMERVILLE, MA 02144-1723

Building Information

Commercial Building Number 1, Section 1

Exterior
StyleAPARTMENTS
Occupancy >8-UNIT-APT
Number of Stories4
Exterior Wall Type BRICK
Roof Material RUBBER-MEMBRAN
Wall Height 11
Partititions AVERAGE
Interior
Living Area (sq. ft.)26,946
Number of Units 37
Systems
Heat TypeHOT-WATER
Heat Fuel Gas
Plumbing AVERAGE
Condition & Grade
Year Built1940
Overall ConditionGood
Overall GradeGood
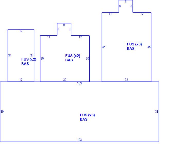
Subareas
Code Description Gross Area Living Area
BAS First Floor 7,139 7,139
FUS Upper Story, Finished 19,807 19,807
Total: 26,946 26,946
Extra Features / Outbuildings
DescriptionPAVING-ASPHT
Number of Units5000.00
Unit TypeSF

Photos

(Click on a photo to view it at full size)

Sketches

(Click on a sketch to view it at full size)

Related Information

This page contains much of the information used by the City of Cambridge to assess properties. The purpose of this information is to be used only for ad valorem taxation purposes and any other use is therefore not valid.

Page was last modified on 3/8/2021 6:22 PM
Contact Us

How can we help?

Please provide as much detail below as possible so City staff can respond to your inquiry:

As a governmental entity, the Massachusetts Public Records Law applies to records made or received by the City. Any information received through use of this site is subject to the same provisions as information provided on paper.

Read our complete privacy statement


Service Requests

Enter a service request via SeeClickFix for things like missed trash pickups, potholes, etc.