U.S. flag

An official website of the United States government

Official websites use .gov
A .gov website belongs to an official government organization in the United States.

Secure .gov websites use HTTPS
A lock ( ) or https:// means you’ve safely connected to the .gov website. Share sensitive information only on official, secure websites.

Photo of houses along Bigelow Street

Property Database

924 Massachusetts Ave

Property Information

Property Class EATING-ESTBL
State Class Code 326
Zoning (Unofficial) C-2B
Map/Lot 120-48
Land Area (sq. ft) 6,019

Property Value

Year of Assessment2026
Tax DistrictC5
Residential ExemptionNo
Building Value$383,000
Land Value$1,289,300
Assessed Value$1,672,300
Sale Price$850,000
Book/Page44356/362
Sale DateDecember 22, 2004
Previous Assessed Value$1,819,000

Owner Information

Owner(s)KUMAR, ANIL TRUSTEE
SHIV, INC. REALTY TRUST
355 WILLIAM ST
STONEHAM, MA 02180

Building Information

Commercial Building Number 1, Section 1

Exterior
StyleRESTAURANT
Occupancy EATING-ESTBL
Number of Stories1
Exterior Wall Type BRICK
Roof Material TAR-GRAVEL
Wall Height 12
Partititions GOOD
Interior
Living Area (sq. ft.)2,768
Number of Units 1
Systems
Heat TypeFORCED-AIR
Heat Fuel Gas
Plumbing GOOD
Condition & Grade
Year Built1915
Overall ConditionFair
Overall GradeFair
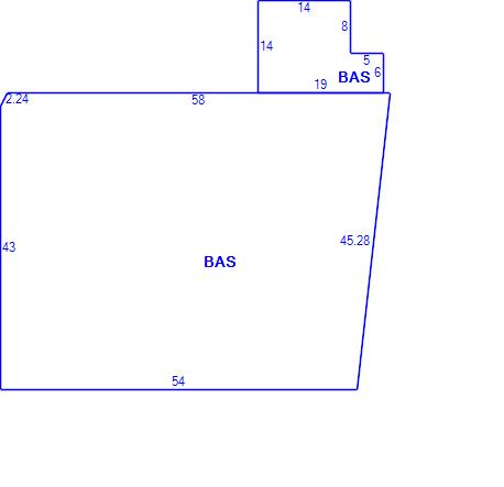
Subareas
Code Description Gross Area Living Area
BAS First Floor 2,768 2,768
Total: 2,768 2,768

Photos

(Click on a photo to view it at full size)

Sketches

(Click on a sketch to view it at full size)

Related Information

This page contains much of the information used by the City of Cambridge to assess properties. The purpose of this information is to be used only for ad valorem taxation purposes and any other use is therefore not valid.

Page was last modified on 3/8/2021 6:22 PM
Contact Us

How can we help?

Please provide as much detail below as possible so City staff can respond to your inquiry:

As a governmental entity, the Massachusetts Public Records Law applies to records made or received by the City. Any information received through use of this site is subject to the same provisions as information provided on paper.

Read our complete privacy statement


Service Requests

Enter a service request via SeeClickFix for things like missed trash pickups, potholes, etc.