U.S. flag

An official website of the United States government

Official websites use .gov
A .gov website belongs to an official government organization in the United States.

Secure .gov websites use HTTPS
A lock ( ) or https:// means you’ve safely connected to the .gov website. Share sensitive information only on official, secure websites.

Photo of houses along Bigelow Street

Property Database

1 Callender St

Property Information

Property Class Charitable Svc
State Class Code 957
Zoning (Unofficial) C-1
Map/Lot 122-107
Land Area (sq. ft) 19,500

Property Value

Year of Assessment2026
Tax DistrictC4
Residential ExemptionNo
Building Value$6,175,200
Land Value$2,827,500
Assessed Value$9,002,700
Sale Price$0
Book/Page6736/21
Sale DateJanuary 3, 1944
Previous Assessed Value$9,626,700

Owner Information

Owner(s)CAMBRIDGE COMMUNITY CENTER INC.
5 CALLENDER ST
CAMBRIDGE, MA 02139

Building Information

Commercial Building Number 1, Section 1

Exterior
StyleOFFICE
Occupancy Charitable Svc
Number of Stories2
Exterior Wall Type BRICK
Roof Material RUBBER-MEMBRAN
Wall Height 12
Partititions GOOD
Interior
Living Area (sq. ft.)23,542
Number of Units 1
Systems
Heat TypePACKAGE-A/C
Heat Fuel Gas
Plumbing GOOD
Condition & Grade
Year Built1980
Overall ConditionGood
Overall GradeGood
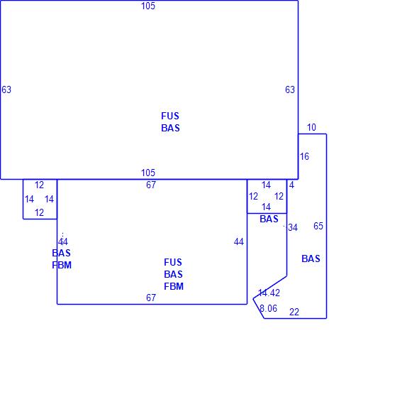
Subareas
Code Description Gross Area Living Area
BAS First Floor 10,863 10,863
FBM Basement, Finished 3,116 3,116
FUS Upper Story, Finished 9,563 9,563
Total: 23,542 23,542

Photos

(Click on a photo to view it at full size)

Sketches

(Click on a sketch to view it at full size)

Related Information

This page contains much of the information used by the City of Cambridge to assess properties. The purpose of this information is to be used only for ad valorem taxation purposes and any other use is therefore not valid.

Page was last modified on 3/8/2021 6:22 PM
Contact Us

How can we help?

Please provide as much detail below as possible so City staff can respond to your inquiry:

As a governmental entity, the Massachusetts Public Records Law applies to records made or received by the City. Any information received through use of this site is subject to the same provisions as information provided on paper.

Read our complete privacy statement


Service Requests

Enter a service request via SeeClickFix for things like missed trash pickups, potholes, etc.